Pronájem bytu 2+kk, Praha - Dejvice, Paťanka, 56 m2

Paťanka, Praha, Dejvice

21 000 Kč /za měsíc Získejte výhodnou HYPOTÉKU

(+ 3 000 Kč/měs. poplatky + 1 000 Kč elektřina)

Prověřené firmy v Praze 6

Stěhovací služby

Výkup a prodej starého nábytku

Informace k bytu

Nabízíme Vám pronájem světlého a prostorného bytu 2+KK o celkové ploše 56 m2 (včetně terasy 9,83 m2) s jihovýchodní orientací, jež je součástí šestipodlažního bytového domu a projektu „Rezidence Podbaba“ z roku 2009.

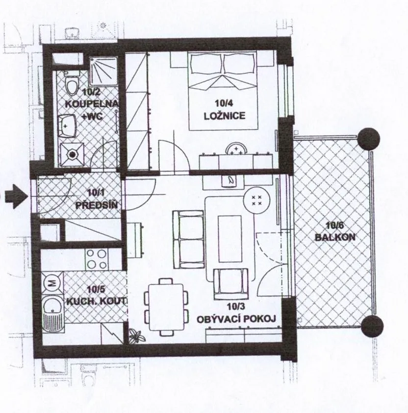
Byt se nachází ve 3. patře s výtahem, je nezařízený (nábytek viz foto může být ponechán), jeho součástí je kuchyňská linka, el. sporák, digestoř, myčka nádobí, (lednice s mrazákem může být dodána), pračka. Koupelna se sprchovým koutem je společně s WC. Na podlaze jsou plovoucí podlahy a dlažba. Možnost kabelové TV a připojení k internetu/telefonu od Vodafone nebo O2.

Oba pokoje mají pěkný, volný výhled do zeleně. Plochy místností jsou: obývací pokoj s 18,34m2, kuch. kout 5,66 m2, ložnice 12,49 m2, koupelna s WC 4,78 m2, předsíň 3,68 m2 a terasa 9,83 m2. K dispozici je zabezpečená zděná sklepní kóje o ploše 3 m2. K dispozici je možnost využití příjemného vnitrobloku domu s posezením.

Veškerá občanská vybavenost je v docházkové vzdálenosti, supermarket Kaufland se nachází 300 m od bytu, 2 minuty chůze k zastávce tram Nádraží Podbaba (3 minuty k metru A Dejvická), tram č. 8, 18, bus č. 107, 116, 147, 160, 255, 340, 350, 355, 902, 909 a 954. Byt se nachází v těsné blízkosti Sportovního areálu Juliska.

Možnost dlouhodobého nájmu s přihlášením se k trvalému pobytu. Byt je vhodný pouze pro nekuřáky, 1 – 2 pracující osoby (partnerský pár, nikoliv spolubydlení). Ihned volné k nastěhování.

Parametry bytu

Cena
21 000 Kč /za měsíc
Poznámka k ceně
+ 3 000 Kč/měs. poplatky + 1 000 Kč elektřina
Aktualizováno
2. 10. 2025
Adresa
Paťanka, Praha, Dejvice
Stavba
Cihlová
Stav objektu
Velmi dobrý
Patro
3. z 7
Vybaveno
Ne
Lokalita objektu
Klidná část obce
Vlastnictví
Osobní
Užitná plocha
56 m2
Třída energetické náročnosti
C - Úsporná
Elektřina
230V
Odpad
Veřejná kanalizace
Komunikace
Asfaltová
Telekomunikace
Internet, Kabelová televize
Doprava
MHD, Autobus
Voda
Vodovod
Topné těleso
Radiátory
Zdroj topení
Ústřední dálkové
Zdroj teplé vody
Centrální dálkový ohřev
Sklep
Terasa
Výtah

Kontaktovat makléře

Máte zájem o tento byt?

Tímto, v souladu s nařízením Evropského parlamentu a Rady (EU) 2016/679, v platném znění, prohlašuji, že mi je alespoň 16 let a uděluji tak svůj souhlas se zpracováním zadaných údajů (jméno, telefon, e-mail, ip adresa) společnosti B3 Technology, s.r.o., IČ: 07330600, se sídlem Novostavby 126/23, 435 11 Lom (správce dat), za účelem předání dotazu z tohoto formuláře Vámi vybranému inzerentovi a zpětného kontaktování mé osoby. Osobní údaje bude správce zpracovávat manuálně i automaticky přímo prostřednictvím svých zaměstnanců. Informace předané tímto formulářem budou uloženy v databázi správce maximálně po dobu 10 let. Odvolání souhlasu s uložením a zpracováním poskytnutých dat lze e-mailem na info@realitypro.eu. V případě podezření na neoprávněné použití Vámi poskytnutých údajů máte právo předat podnět k šetření Úřadu pro ochranu osobních údajů. Více informací
Chystáte se prodat nemovitost?
Pomůžeme Vám!

Inzerát si prohlédlo 1 lidí

Prodejce

Ing. Petr Strnad

Ing. Petr Strnad

Hlídací pes

Chcete dostávat emailem podobné nabídky pronájmu bytů 2+kk v Praze 6?

Podobné nemovitosti