Prodej vily, Praha - Modřany, Na Floře, 239 m2 (ID: 2684598)

Na Floře, Praha, Modřany

24 980 000 Kč /za nemovitost HYPOTÉKA od 111 645 Kč /za měsíc
Prověřené firmy v Praze 4

Stěhovací služby

Výkup a prodej starého nábytku

Informace k domu

Nabízíme k prodeji třípatrovou vilu z 30. let minulého století v klidné části Prahy - Modřany. Vila s krásnou zahradou se vzrostlými stromy zajišťuje maximální soukromí a dechberoucí výhledy do okolí. Vila stojí ve svažitém pozemku o rozloze 1 644 m² a nabízí podlahovou plochu 239 m².

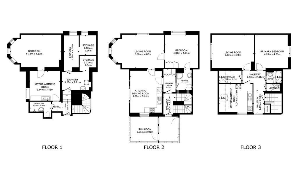
Dům má tři nadzemní podlaží propojená vnitřním schodištěm a v současnosti každé z nich slouží jako samostatná bytová jednotka.

1. nadzemní podlaží tvoří pokoj (26 m²), kuchyň (13 m²), koupelna se sprchovým koutem a toaletou, předsíň, technická místnost a sklep (16 m²). K dispozici je i samostatná terasa vhodná pro venkovní posezení.

2. nadzemní podlaží nabízí obývací pokoj s krbovými kamny (25 m²), ložnici (16 m²), kuchyň (20 m²), koupelnu se sprchovým koutem a toaletou, předsíň a zimní zahradu (17 m²) s krásným výhledem do zeleně.

3. nadzemní podlaží disponuje obývacím pokojem s balkonem (21,5 m²) s nádherným výhledem, ložnicí (18 m²), kuchyní (14 m²), komorou (4 m²), předsíní, koupelnou a samostatnou toaletou.

V domě jsou zachované původní dřevěné podlahy a v 1. a 2. NP jsou dřevěná eurookna s dvojskly. Ve 3. NP plastová okna a podlahová krytina je kombinací lina a dlažby.

Vytápění a ohřev vody zajišťuje plynový kotel. Dům je napojen na městský vodovod a kanalizaci, na pozemku se navíc nachází vlastní studna.

Zahrada je díky svažitému terénu členitě řešená a nabízí řadu příjemných zákoutí. Najdete zde pergolu s posezením, venkovní sklípek, úložný prostor na zahradní náčiní, a také prostor pro pěstování zeleniny, ovoce a květin.

Součástí nemovitosti jsou tři samostatné garáže, jedno venkovní parkovací stání a velkou výhodou je výtah z garáže přímo na zahradu.

Tato vila je ideální jak pro rodinné či vícegenerační bydlení, tak i jako sídlo firmy.

Nemovitost se nachází v klidné rezidenční čtvrti Modřany, která nabízí výbornou dostupnost do centra Prahy i kvalitní spojení MHD. Lokalita je bohatá na volnočasové aktivity – cyklostezky podél Vltavy, minigolf, plážový volejbal, zábavní park, restaurace a kavárny – vše v pohodlné pěší vzdálenosti.

Veškerá občanská vybavenost je v místě.

Energetická třída G je uvedena dočasně – po dodání energetického štítku bude aktualizována skutečná třída energetické náročnosti této nemovitosti.

Parametry domu

Cena
24 980 000 Kč /za nemovitost Spočítat hypotéku
Aktualizováno
12. 11. 2025
Adresa
Na Floře, Praha, Modřany
ID
N7702
Stavba
Cihlová
Stav objektu
Velmi dobrý
Vybaveno
Ano
Druh objektu
Samostatný
Užitná plocha
239 m2
Plocha pozemku
1644 m2
Plocha zahrady
1478 m2
Třída energetické náročnosti
G - Mimořádně nehospodárná
Garáž
Sklep
Parkování

Kontaktovat makléře

Máte zájem o tento dům?

Tímto, v souladu s nařízením Evropského parlamentu a Rady (EU) 2016/679, v platném znění, prohlašuji, že mi je alespoň 16 let a uděluji tak svůj souhlas se zpracováním zadaných údajů (jméno, telefon, e-mail, ip adresa) společnosti B3 Technology, s.r.o., IČ: 07330600, se sídlem Novostavby 126/23, 435 11 Lom (správce dat), za účelem předání dotazu z tohoto formuláře Vámi vybranému inzerentovi a zpětného kontaktování mé osoby. Osobní údaje bude správce zpracovávat manuálně i automaticky přímo prostřednictvím svých zaměstnanců. Informace předané tímto formulářem budou uloženy v databázi správce maximálně po dobu 10 let. Odvolání souhlasu s uložením a zpracováním poskytnutých dat lze e-mailem na info@realitypro.eu. V případě podezření na neoprávněné použití Vámi poskytnutých údajů máte právo předat podnět k šetření Úřadu pro ochranu osobních údajů. Více informací
Chystáte se prodat nemovitost?
Pomůžeme Vám!

Inzerát si prohlédlo 22 lidí

Prodejce

Romana Čermáková

Romana Čermáková

Hlídací pes

Chcete dostávat emailem podobné nabídky prodeje vil v Praze 4?

Podobné nemovitosti