Prodej obchodního prostoru, Olomouc - Nová Ulice, 84 m2

Olomouc, Nová Ulice

3 490 000 Kč /za nemovitost HYPOTÉKA od 15 598 Kč /za měsíc

(včetně právních služeb a provize RK)

Prověřené firmy v Olomouci

Informace k nemovitosti

Prodej atraktivního nebytového prostoru - ideální pro Vaše podnikání.

Máte podnikatelský záměr a hledáte vhodné místo v Olomouci? Pak nepřehlédněte tuto výjimečnou nabídku!

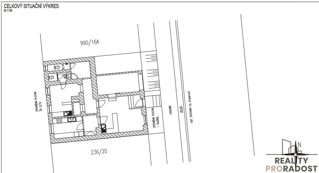
Nabízíme k prodeji nebytový prostor o výměře 84 m², nacházející se v suterénu udržovaného činžovního domu v atraktivní lokalitě v Olomouci – ulice Krapkova, jen pár minut chůze od centra města a v těsné blízkosti Smetanových sadů.

Tento prostor má široké možnosti využití – v minulosti zde fungovala kavárna - cukrárna nebo testovací krevní centrum. Díky svému členění, přístupu z ulice a dobré dostupnosti se skvěle hodí pro širokou škálu podnikání – kavárna, bistro, obchod, kosmetické či masážní studio, showroom, kancelář, výdejna e-shopu nebo třeba ateliér.

Co Vám tento prostor nabízí?

✅ Skvělá lokalita – klidná, ale zároveň velmi frekventovaná oblast s výbornou dostupností
✅ Skvělá dopravní dostupnost - blízkost MHD
✅ Pěší dosah do centra města i parků
✅ Zavedené okolí – sousedství oblíbené pivnice zajišťuje stabilní pohyb lidí v lokalitě
✅ Připraveno k úpravám dle Vašich potřeb
✅ Vlastní sociální zázemí – oddělené WC, místnost pro zázemí personálu či sklad
✅ Výloha do ulice
✅ Osobní vlastnictví - vhodné i jako investice (možnost pronájmu)

Technické parametry:
- Užitná plocha: 84 m²
- 4 místnosti
- 2 x WC, sprchový kout
- Umístění: suterén
- Stav: dobrý / před úpravami dle nového využití
- Vytápění: vlastním plynovým kotlem
- Vodovod, elektřina - vlastní měřiče

Pokud hledáte prostor pro své podnikání, který kombinuje výbornou polohu, dostupnost a příznivou cenu, tato nabídka rozhodně stojí za prohlídku.

Parametry nemovitosti

Cena
3 490 000 Kč /za nemovitost Spočítat hypotéku
Poznámka k ceně
včetně právních služeb a provize RK
Aktualizováno
8. 10. 2025
Adresa
Olomouc, Nová Ulice
ID
26855
Stavba
Smíšená
Stav objektu
Dobrý
Vybaveno
Částečně
Typ objektu
Patrový
Lokalita objektu
Centrum obce
Užitná plocha
84 m2
Podlahová plocha
84 m2
Třída energetické náročnosti
G - Mimořádně nehospodárná
Elektřina
230V
Plyn
Plynovod
Odpad
Veřejná kanalizace
Voda
Vodovod
Převod do OV

Kontaktovat makléře

Máte zájem o tuto nemovistost?

Tímto, v souladu s nařízením Evropského parlamentu a Rady (EU) 2016/679, v platném znění, prohlašuji, že mi je alespoň 16 let a uděluji tak svůj souhlas se zpracováním zadaných údajů (jméno, telefon, e-mail, ip adresa) společnosti B3 Technology, s.r.o., IČ: 07330600, se sídlem Novostavby 126/23, 435 11 Lom (správce dat), za účelem předání dotazu z tohoto formuláře Vámi vybranému inzerentovi a zpětného kontaktování mé osoby. Osobní údaje bude správce zpracovávat manuálně i automaticky přímo prostřednictvím svých zaměstnanců. Informace předané tímto formulářem budou uloženy v databázi správce maximálně po dobu 10 let. Odvolání souhlasu s uložením a zpracováním poskytnutých dat lze e-mailem na info@realitypro.eu. V případě podezření na neoprávněné použití Vámi poskytnutých údajů máte právo předat podnět k šetření Úřadu pro ochranu osobních údajů. Více informací
Chystáte se prodat nemovitost?
Pomůžeme Vám!

Inzerát si prohlédlo 2 lidí

Prodejce

Ing. Kamila Kopřivová

Ing. Kamila Kopřivová

Hlídací pes

Chcete dostávat emailem podobné nabídky prodeje obchodních prostor v Olomouci?

Podobné nemovitosti