Pronájem bytu 4+kk, Praha - Holešovice, Vinařská, 118 m2

Vinařská, Praha, Holešovice

50 000 Kč /za měsíc Získejte výhodnou HYPOTÉKU

(+ 4000 poplatky, bez poplatků, + provize RK, včetně právního servisu)

Prověřené firmy v Praze 7

Stěhovací služby

Výkup a prodej starého nábytku

Informace k bytu

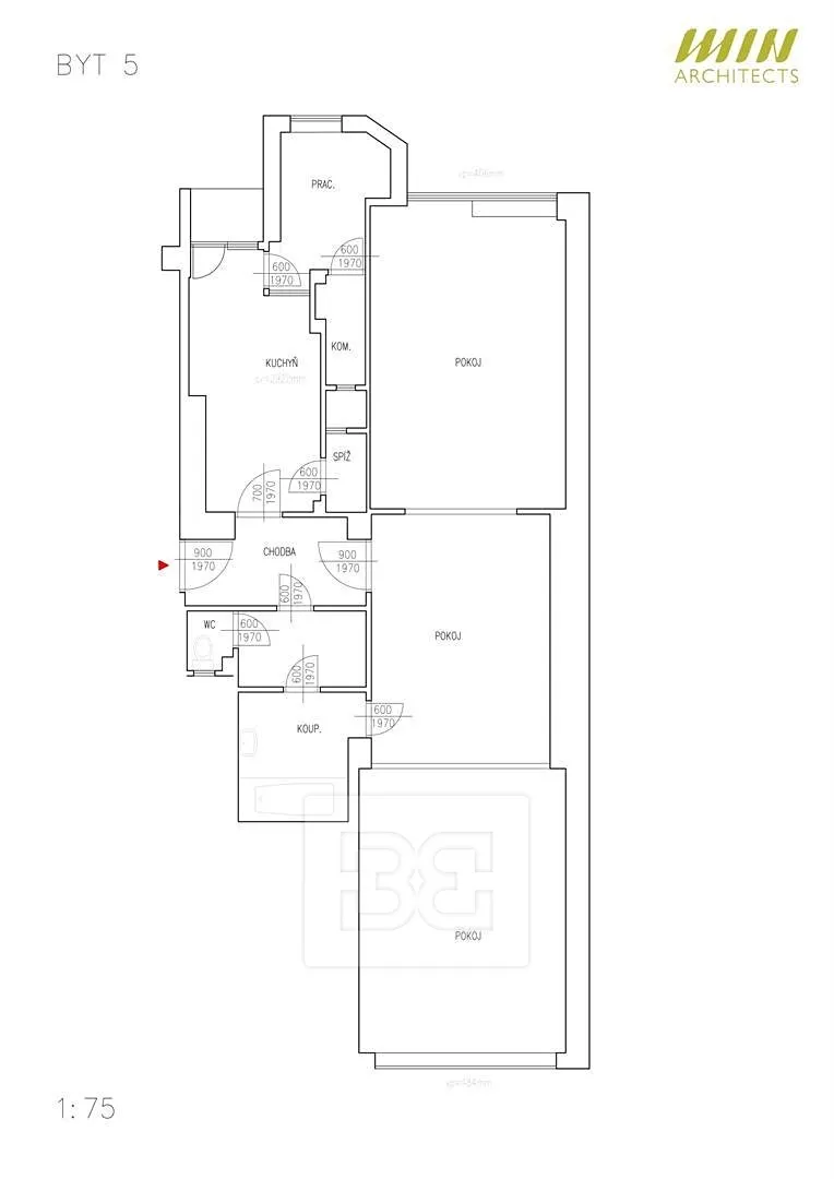
Nabízíme k dlouhodobému pronájmu jedinečný byt 4+kk o rozloze 118 m2, který se nachází ve třetím patře funkcionalistického domu s výtahem, v ulici Vinařská u Strossmayerova náměstí. Byt prošel kompletní a náročnou rekonstrukcí: renovace podlah, nové koupelny, nová kuchyně a vestavný nábytek, nová okna. Dominantou bytu je prostorný obývací pokoj s kompletně vybavenou kuchyní, který se dá rozdělit původními skládacími dveřmi, představujícími velmi praktický prvek pro pružné členění prostoru. Krásná okna na celou šířku stěny zajišťují průnik velkého množství denního světla. Z haly se dostanete do hlavní ložnice, která je vybavena velkou šatnou a oddělenou koupelnou s WC a sprchovým koutem. Na druhém konci obývacího pokoje najdeme druhou ložnici s oknem do vnitrobloku a velkou vestavnou skříní. Z předsíně je vstup do menšího pokoje s balkonem, který může sloužit jako dětský pokoj nebo pracovna. Tento pokoj je též vybaven šatní skříní. Dále z předsíně vstoupíte do koupelny s vanou a na samostatné WC.
Výhled je jak do vnitrobloku, tak i na hlavní ulici. Jedná se o velmi klidnou ulici a v bytě panuje ticho a klid. Obyvatelům domu je k dispozici bezpečný prostor pro parkování kol umístěný na dvoře. K dispozici je sklep v suterénu budovy. V bytě se nacházejí dvě komory pro uskladnění potravin a dalších věcí.
Jedná se o vyhledávanou lokalitu v blízkosti parku Stromovka a Letenských sadů. Lokalita domu nabízí skvělou dopravní dostupnost a veškerou občanskou vybavenost v těsné blízkosti. Projekt nájemního domu pro Bertu Porgesovou vypracoval významný český architekt vědeckého funkcionalismu Jan Gillar v roce 1936. Ve vstupní hale se dochovaly původní dlažby, mramorové obklady stěn a hodnotné uměleckořemeslné detaily.

Nájem: 50.000 Kč
Zúčtovatelné poplatky / zálohy: 4.000 Kč za ě osoby + 500 Kč za každou další (topení, voda, odpad, úklid a údržba domu a okolí)
Vratná kauce 75.000 Kč
Provize RK ve výši jednoho nájmu + DPH 21%
Elektřina bude převedena na nájemníka.

Pozor, velkou výhodou pro potenciální nájemce je, že byt je v profesionální správě společnosti Bohemian Estates, jenž správu pro majitele tohoto bytu vykonává. Nájemci je k dispozici kontaktní osoba, která řeší veškeré záležitosti s nájmem spojené (údržba, platby nájemného, vyúčtování, dodatky apod.). Nájemci je tak zajištěno bezproblémové užívání bytu s kompletním servisem.

Parametry bytu

Cena
50 000 Kč /za měsíc
Poznámka k ceně
+ 4000 poplatky, bez poplatků, + provize RK, včetně právního servisu
Aktualizováno
27. 9. 2025
Adresa
Vinařská, Praha, Holešovice
ID
N08390
Stavba
Cihlová
Stav objektu
Velmi dobrý
Patro
3.
Vybaveno
Částečně
Vlastnictví
Osobní
Užitná plocha
118 m2
Třída energetické náročnosti
D - Méně úsporná
Ukazatel energetické náročnosti
200 kWh/m2 za rok
Elektřina
230V
Odpad
Veřejná kanalizace
Telekomunikace
Telefon, Internet, Kabelové rozvody
Doprava
Vlak, Dálnice, Silnice, MHD, Autobus
Voda
Vodovod
Topné těleso
Radiátory
Zdroj topení
Centrální dálkové
Zdroj teplé vody
Centrální dálkový ohřev
Balkon
Sklep
Výtah

Kontaktovat makléře

Máte zájem o tento byt?

Tímto, v souladu s nařízením Evropského parlamentu a Rady (EU) 2016/679, v platném znění, prohlašuji, že mi je alespoň 16 let a uděluji tak svůj souhlas se zpracováním zadaných údajů (jméno, telefon, e-mail, ip adresa) společnosti B3 Technology, s.r.o., IČ: 07330600, se sídlem Novostavby 126/23, 435 11 Lom (správce dat), za účelem předání dotazu z tohoto formuláře Vámi vybranému inzerentovi a zpětného kontaktování mé osoby. Osobní údaje bude správce zpracovávat manuálně i automaticky přímo prostřednictvím svých zaměstnanců. Informace předané tímto formulářem budou uloženy v databázi správce maximálně po dobu 10 let. Odvolání souhlasu s uložením a zpracováním poskytnutých dat lze e-mailem na info@realitypro.eu. V případě podezření na neoprávněné použití Vámi poskytnutých údajů máte právo předat podnět k šetření Úřadu pro ochranu osobních údajů. Více informací
Chystáte se prodat nemovitost?
Pomůžeme Vám!

Inzerát si prohlédlo 1 lidí

Prodejce

Jurij Vačugov

Jurij Vačugov

Hlídací pes

Chcete dostávat emailem podobné nabídky pronájmu bytů 4+kk v Praze 7?

Top nabídky

Podobné nemovitosti