Pronájem bytu 2+1, Břeclav - Poštorná, Gagarinova, 56 m2

Gagarinova, Břeclav, Poštorná

Rezervováno
Cena na vyžádání /za měsíc Získejte výhodnou HYPOTÉKU

(info v RK, + zálohy na energie, včetně poplatků, + provize RK, včetně právního servisu)

Prověřené firmy v Břeclavi

Informace k bytu

Zprostředkujeme Vám, ve výhradním zastoupení majitelky, pronájem bytové jednotky o velikosti 2+1, v ulici Gagarinova č.p. 808/9, městská část Poštorná, Břeclav.

Užitná plocha 56 m² s obytnou plochou 51 m².

Byt se nachází ve 2.NP z celkového počtu 3 podlaží.

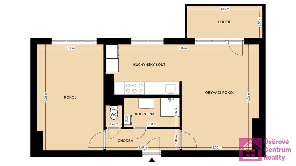
Dispozice bytu: předsíň, pokoj, toaleta, koupelna (sprchový kout), kuchyň, pokoj s přístupem na balkón. Půdorys bytu naleznete ve fotogalerii.

Měsíční nájemné 14.000 Kč + zálohy na energie 4.350 Kč (elektřina, plyn, voda, stočné a služby)
Vratná jistota 30.000 Kč.
Provize pro realitního zprostředkovatele 14.000 Kč.
Předání bytu bude možné po uhrazení částky 62.350 Kč, tato částka zahrnuje měsíční nájemné, zálohu na energie, vratnou jistotu a provize pro RK.

Ihned k nastěhování.

Zaujala Vás tato nabídka? Máte zájem o prohlídku? Prosíme všechny vážné zájemce o pronájem, aby nás pro rychlé vyřízení kontaktovali pomocí odpovědního formuláře u inzerátu.

Následně Vám zašleme e-mail s odkazem na krátký osobní dotazník. Po jeho vyplnění se Vám ozveme a domluvíme se na dalším postupu i termínu prohlídky.

Parametry bytu

Stav
Rezervováno
Cena
Cena na vyžádání
Poznámka k ceně
info v RK, + zálohy na energie, včetně poplatků, + provize RK, včetně právního servisu
Aktualizováno
14. 10. 2025
Adresa
Gagarinova, Břeclav, Poštorná
ID
00147
Stavba
Cihlová
Stav objektu
Po rekonstrukci
Patro
2. z 3
Vybaveno
Ne
Druh objektu
Řadový
Lokalita objektu
Klidná část obce
Vlastnictví
Osobní
Užitná plocha
56 m2
Podlahová plocha
61 m2
Třída energetické náročnosti
G - Mimořádně nehospodárná
Elektřina
230V
Plyn
Plynovod
Odpad
Veřejná kanalizace
Topení
Ústřední plynové
Komunikace
Asfaltová
Telekomunikace
Internet
Doprava
Vlak, Dálnice, Silnice, MHD, Autobus
Voda
Vodovod
Balkon
Sklep
Výtah

Kontaktovat makléře

Máte zájem o tento byt?

Tímto, v souladu s nařízením Evropského parlamentu a Rady (EU) 2016/679, v platném znění, prohlašuji, že mi je alespoň 16 let a uděluji tak svůj souhlas se zpracováním zadaných údajů (jméno, telefon, e-mail, ip adresa) společnosti B3 Technology, s.r.o., IČ: 07330600, se sídlem Novostavby 126/23, 435 11 Lom (správce dat), za účelem předání dotazu z tohoto formuláře Vámi vybranému inzerentovi a zpětného kontaktování mé osoby. Osobní údaje bude správce zpracovávat manuálně i automaticky přímo prostřednictvím svých zaměstnanců. Informace předané tímto formulářem budou uloženy v databázi správce maximálně po dobu 10 let. Odvolání souhlasu s uložením a zpracováním poskytnutých dat lze e-mailem na info@realitypro.eu. V případě podezření na neoprávněné použití Vámi poskytnutých údajů máte právo předat podnět k šetření Úřadu pro ochranu osobních údajů. Více informací
Chystáte se prodat nemovitost?
Pomůžeme Vám!

Inzerát si prohlédlo 76 lidí

Prodejce

Igor Kahánek

Igor Kahánek

Hlídací pes

Chcete dostávat emailem podobné nabídky pronájmu bytů 2+1 v Břeclavi?