Prodej ubytování, Krupka, Husitská, 552 m2

Husitská, Krupka

4 890 000 Kč /za nemovitost HYPOTÉKA od 21 855 Kč /za měsíc

(včetně poplatků, včetně provize, včetně právního servisu)

Prověřené firmy v Krupce

Okna a dveře

Rekonstrukce

Zámečnické práce

Informace k nemovitosti

Hledáte nemovitost, která má obrovský potenciál pro široké spektrum podnikatelských záměrů? Tento dům v srdci historické Krupky je unikátním místem. Restaurace, penzion, kulturní centrum, ubytovna – to vše zde může vzniknout díky skvělé poloze a dispozici objektu.

Město Krupka leží na úpatí Krušných hor. Najdeme zde hrad, baziliku, kostely i malebné historické uličky a jedná se o nejstarší naleziště cínu ve střední Evropě. Díky tomu se celé území stalo součástí Hornické krajiny Erzgebirge/Krušnohoří, která byla v roce 2019 zapsána na Seznam světového dědictví UNESCO. Nemovitost se nachází přímo v ulici Husitská – hlavní turistické tepně vedoucí na Komáří vížku. Okolí nabízí množství pěších a cyklistických tras, v zimě lyžařský areál a nespočet historických památek, které lákají návštěvníky po celý rok.

Nabízený dům nabízí celkovou užitnou plochu přibližně 552 m², rozdělenou do tří obytných podlaží a půdy. Dříve zde fungovala hospoda se společenským sálem, a právě to dodává domu jedinečný charakter.

V přízemí objektu se nachází bývalá hospoda s výčepem, kuchyní, sociálním zařízením a skladovacími prostory. Jedná se o otevřený prostor s výměrou celých 100 m2, prosvětlený okny směřujícími přímo do hlavní ulice. Sloup a přilehlé klenby jsou zde využity jako předělující prvek mezi jednotlivými zónami hospody, které tvořila herní část, pódium, sezení a bar. Na prostory navazuje zádveří se skladem a dále vybavená gastro kuchyň o výměře 16 m2, taktéž se skladem. Další skladovací prostory o celkové výměře 32 m2 jsou umístěny chodbou v zadní části přízemí. Zbylé prostory přízemí tvoří vstupní chodba a sociální zařízení.

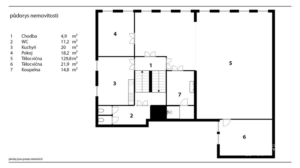
Druhé podlaží domu skrývá velký sál - jedná se o 130 m2 rozlehlý, otevřený prostor, který vybízí k využití pro nejrůznější účely. Může se proměnit ve společenský sál s tanečním parketem, sál pro koncert či představení, nebo například sportovní tělocvičnu. A protože Krupka i okolní region podobná místa postrádají, má tento sál obrovský komerční potenciál. Vedle hlavního sálu se v patře nachází tři pokoje, které lze využít jako šatny, kanceláře či ubytovací jednotky. Samozřejmostí je sociální zázemí, které umožňuje plnohodnotné využití patra.

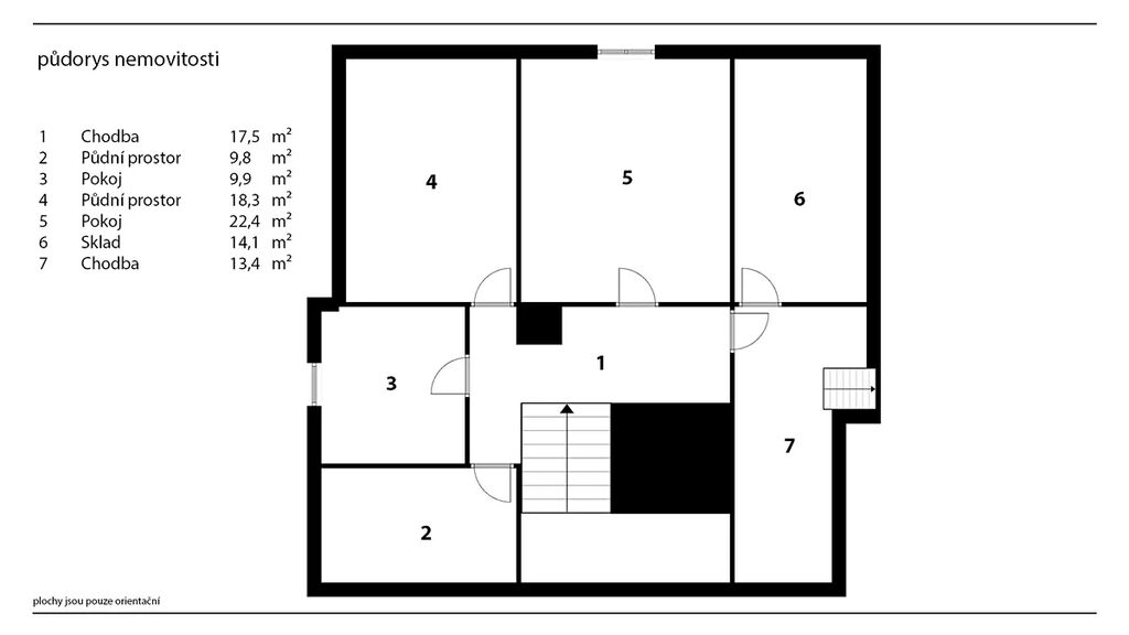
Ve třetím podlaží na vás čeká několik dalších místností, nabízejících prostor k přestavbě na útulné pokoje pro hosty či kanceláře. Součástí tohoto patra je také půdní prostor, který otevírá další dimenzi využití. Půdu lze přestavět na další ubytovací prostory s jedinečnou podkrovní atmosférou a maximalizovat tak celkovou kapacitu.

Za domem se rozprostírá klidný vnitroblok, do kterého přímo zasahuje majestátní skalní útvar. Ten vytváří nejen působivou kulisu, ale i jedinečnou atmosféru místa. Skála je součástí pozemku a v jedné její části se otevírá přístupný přírodní prostor, připomínající malou jeskyni. Ten může být využit například jako originální vinný sklípek v kombinaci s venkovním posezením.

Dům je cihlový, bez zateplení. Okna jsou částečně plastová, částečně dřevěná. Je připojen na elektřinu, plyn, veřejný vodovod i kanalizaci. Vytápění je řešeno plynovým kotlem. Celý objekt si zasluhuje rekonstrukci, která vám dává možnost přetvořit nemovitost přesně podle vlastních představ a využít dotační podpory, které díky zápisu lokality na seznam UNESCO můžete získat.

Tato nemovitost není jen dům – je to příležitost vytvořit místo s nezaměnitelným geniem loci tam, kde se historie potkává s turistikou a kde je poptávka po podobných službách víceméně jistotou. Pokud hledáte investici, která má hloubku, atmosféru i potenciál, pak jste ji právě našli. Zavolejte mi a pojďme se na dům společně podívat!

Parametry nemovitosti

Cena
4 890 000 Kč /za nemovitost Spočítat hypotéku
Poznámka k ceně
včetně poplatků, včetně provize, včetně právního servisu
Aktualizováno
31. 10. 2025
Adresa
Husitská, Krupka
ID
00241-1
Stavba
Cihlová
Stav objektu
Před rekonstrukcí
Vybaveno
Ne
Lokalita objektu
Centrum obce
Užitná plocha
552 m2
Třída energetické náročnosti
G - Mimořádně nehospodárná
Elektřina
230V
Plyn
Plynovod
Odpad
Veřejná kanalizace
Voda
Vodovod
Zdroj topení
Plynový kotel
Zdroj teplé vody
Bojler - elektro
Výtah

Kontaktovat makléře

Realitní kancelář

FIRST HOLD INVEST s.r.o.

Za Pasáží 1429, Pardubice, Zelené Předměstí

Chystáte se prodat nemovitost?
Pomůžeme Vám!

Máte zájem o tuto nemovistost?

Tímto, v souladu s nařízením Evropského parlamentu a Rady (EU) 2016/679, v platném znění, prohlašuji, že mi je alespoň 16 let a uděluji tak svůj souhlas se zpracováním zadaných údajů (jméno, telefon, e-mail, ip adresa) společnosti B3 Technology, s.r.o., IČ: 07330600, se sídlem Novostavby 126/23, 435 11 Lom (správce dat), za účelem předání dotazu z tohoto formuláře Vámi vybranému inzerentovi a zpětného kontaktování mé osoby. Osobní údaje bude správce zpracovávat manuálně i automaticky přímo prostřednictvím svých zaměstnanců. Informace předané tímto formulářem budou uloženy v databázi správce maximálně po dobu 10 let. Odvolání souhlasu s uložením a zpracováním poskytnutých dat lze e-mailem na info@realitypro.eu. V případě podezření na neoprávněné použití Vámi poskytnutých údajů máte právo předat podnět k šetření Úřadu pro ochranu osobních údajů. Více informací
Chystáte se prodat nemovitost?
Pomůžeme Vám!

Inzerát si prohlédlo 5 lidí

Prodejce

Kryštof Kalhous

Kryštof Kalhous

Hlídací pes

Chcete dostávat emailem podobné nabídky prodeje ubytování v Krupce?

Podobné nemovitosti