Prodej restaurace, Havlíčkův Brod, Vagonova, 300 m2

Vagonova, Havlíčkův Brod

6 240 000 Kč /za nemovitost HYPOTÉKA od 27 889 Kč /za měsíc

(Cena včetně právního servisu a provize RK)

Prověřené firmy v Havlíčkově Brodě

Informace k nemovitosti

Nabízíme k prodeji dům v Havlíčkově Brodě, v těsné blízkosti sídliště Výšina, který spojuje bydlení a podnikání pod jednou střechou. Dům se nachází na pozemku o výměře 342 m2, zastavěná plocha činí 236 m2.

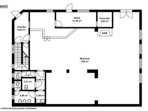
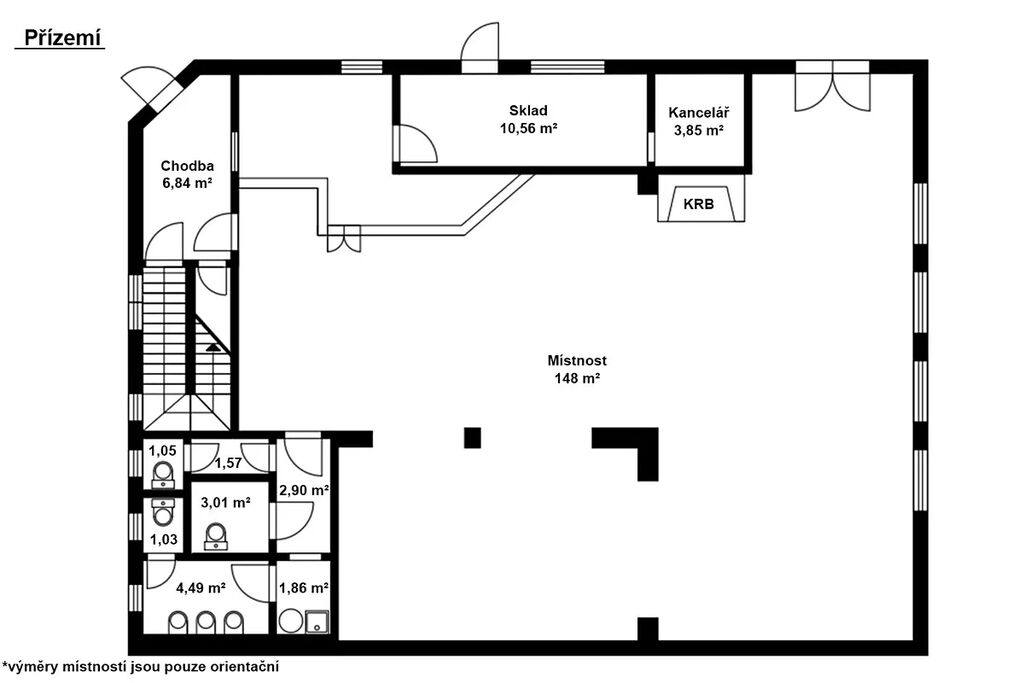
V přízemí fungovala velká pivnice dva prostorné sály, bar, zázemí, toalety pro pány i dámy a technická místnost, to vše o rozloze cca 185 m2. Tyto prostory však nemusí zůstat jen pivnicí - díky své velikosti a dispozici je lze předělat na jakýkoliv jiný komerční prostor, nebo je přetvořit na úplně jiné využití podle potřeb nového majitele. Terasu pro hosty lze zachovat nebo využít k parkování na vlastním pozemku. Na dvoře domu najdete prostorný dřevník s přímým vstupem do zadní části restaurace.

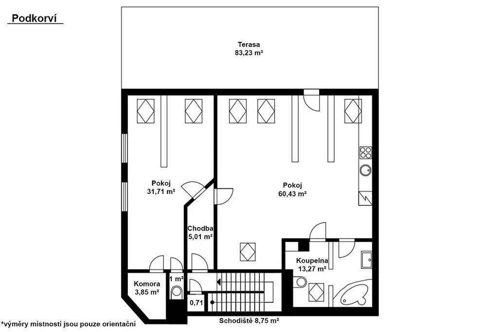
Ve 2. NP je byt s užitnou plochou 115 m2. Byt je aktuálně řešen jako 2+kk s velkou terasou, dalších 82 m2. Světlý, prostorný a s jasnou odděleností od podnikání v přízemí. Byt je celý obložen dřevem - díky tomu působí teple, útulně a má zajímavou atmosféru.

Technicky je dům připravený k okamžitému nastěhování. Plynový kotel s radiátory v obou podlažích, krb v přízemí, krbová kamna v patře, nová elektřina v mědi, voda v plastu, kanalizace samozřejmostí. Ohřev vody řeší bojler, střecha je ze šindele. V přízemí jsou dřevěná okna, v bytě plastová. Dům je bez zástav a břemen. Energetický štítek se zpracovává, proto prozatím uvádím tř. G.

A proč právě tady? Protože stojí na ideálním místě přímo u sídliště Výšina, kde by podnikání našlo své zákazníky každý den.

Pokud hledáte dům, ve kterém můžete nejen bydlet, ale i podnikat, tohle je přesně on.

Těším se na vás na prohlídce!

Parametry nemovitosti

Cena
6 240 000 Kč /za nemovitost Spočítat hypotéku
Poznámka k ceně
Cena včetně právního servisu a provize RK
Aktualizováno
11. 10. 2025
Adresa
Vagonova, Havlíčkův Brod
ID
86
Stavba
Cihlová
Stav objektu
Dobrý
Vybaveno
Částečně
Užitná plocha
300 m2
Třída energetické náročnosti
G - Mimořádně nehospodárná
Odpad
Veřejná kanalizace
Topení
Lokální plynové
Voda
Vodovod
Topné těleso
Radiátory, Krbová kamna, Krb
Bezbarierový přístup

Kontaktovat makléře

Máte zájem o tuto nemovistost?

Tímto, v souladu s nařízením Evropského parlamentu a Rady (EU) 2016/679, v platném znění, prohlašuji, že mi je alespoň 16 let a uděluji tak svůj souhlas se zpracováním zadaných údajů (jméno, telefon, e-mail, ip adresa) společnosti B3 Technology, s.r.o., IČ: 07330600, se sídlem Novostavby 126/23, 435 11 Lom (správce dat), za účelem předání dotazu z tohoto formuláře Vámi vybranému inzerentovi a zpětného kontaktování mé osoby. Osobní údaje bude správce zpracovávat manuálně i automaticky přímo prostřednictvím svých zaměstnanců. Informace předané tímto formulářem budou uloženy v databázi správce maximálně po dobu 10 let. Odvolání souhlasu s uložením a zpracováním poskytnutých dat lze e-mailem na info@realitypro.eu. V případě podezření na neoprávněné použití Vámi poskytnutých údajů máte právo předat podnět k šetření Úřadu pro ochranu osobních údajů. Více informací
Chystáte se prodat nemovitost?
Pomůžeme Vám!

Inzerát si prohlédlo 3 lidí

Prodejce

Jana Rušidi

Jana Rušidi

Hlídací pes

Chcete dostávat emailem podobné nabídky prodeje restaurací v Havlíčkově Brodě?

Podobné nemovitosti