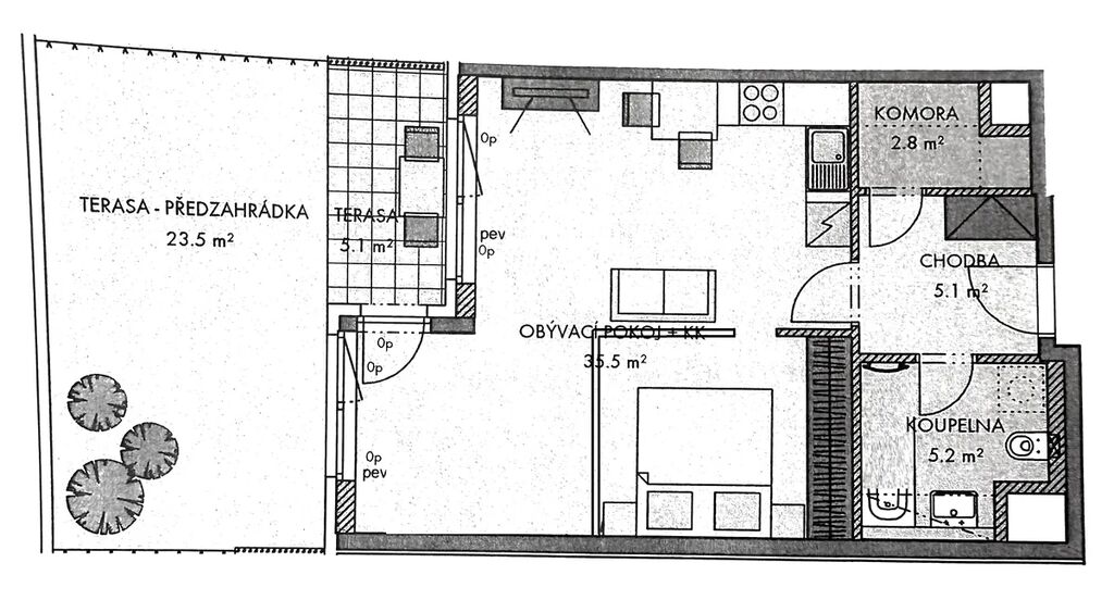
Prodej bytu 2+kk, Praha - Hlubočepy, náměstí Olgy Scheinpflugové, 50 m2

náměstí Olgy Scheinpflugové, Praha, Hlubočepy

8 500 000 Kč /za nemovitost HYPOTÉKA od 37 990 Kč /za měsíc

(vč. provize, právního servisu a bezpečné bankovní úschovy)

Prověřené firmy v Praze 5

Stěhovací služby

Výkup a prodej starého nábytku

Informace k bytu

Nová nabídka – krásný a prostorný byt 2+kk s vlastním garážovým stáním, sklepem a hlavně luxusně velkou TERASOU/ZAHRÁDKOU. Byt je obýván teprve 2 roky a je ještě v záruce od developera!

Dispozice: obývací pokoj s kuch. koutem (+ částečně oddělená pracovna); ložnice (vestavba v OP, odkud je přístup posuvnými skleněnými dveřmi), předsíň, koupelna s prostorným sprchovým koutem + WC (přístup z předsíně), šatna (přístup z předsíně), terasa + zahrádka, sklep (prakticky přístupný z prostorného gar. stání). Terasa je přístupná jak z obývacího pokoje, tak z pracovny a nabízí dostatek prostoru pro venkovní sezení, relaxaci – je k dispozici venkovní elektřina i voda (nezámrzný ventil) a dostatek slunce. Na všech oknech venkovní elektricky ovládané předokenní žaluzie.

Kvalitně vybavený byt – majitel může všechno zařízení přenechat - možnost začít hned bydlet, či bez dalších investic začít pronajímat (perfetní místo a dispozice na výhodný pronájem).

Byt se nachází v 1. podlaží (tj. v bezpečné výši nad terénem – orientace na západ do klidného neprůchozího vnitrobloku s parkovou úpravou a bez provozu aut) moderního klidného a kvalitně postaveného domu (projekt Kaskády Barrandov, developer FINEP, kolaudace 2023) na nově zbudovaném náměstí.

Skvělá lokalita: v pěší dostupnosti veškerá občanská vybavenost, všechny stupně škol, aquapark, sportoviště, fitness, cyklostezky a příroda „za rohem“ (Prokopské a Dalejské údolí, perfektní dopravní dostupnost – zastávka TRAM přímo před domem (na metro B cca 12 minut), dále k dispozici BUS a pro auta rychlé napojení na Pražský okruh.

Hlavní výhody:
• veliká terasa
• vlastní garáž. stání (s pohodlným vjezdem/výjezdem) a se sklepem (dostatečně velký pro kola, apod.)
• kvalitní a klidný dům v oblíbeném projektu (v domě obchod, kolárna)
• perfektní lokalita
• možnost převzít kompletní zařízení bytu

Osobní vlastnictví, možno financovat hypotékou, kterou pro Vás rádi zprostředkujeme za nejvýhodnějších podmínek. K dispozici a prohlídkám ihned. 25 let zkušeností, právní servis a bezpečná bankovní úschova kupní ceny pro Vaši maximální spokojenost!
Nejedná se o návrh na uzavření smlouvy, prodávající si vyhrazuje právo vybrat kupujícího dle vlastních kritérií.

Parametry bytu

Cena
8 500 000 Kč /za nemovitost Spočítat hypotéku
Poznámka k ceně
vč. provize, právního servisu a bezpečné bankovní úschovy
Aktualizováno
26. 9. 2025
Adresa
náměstí Olgy Scheinpflugové, Praha, Hlubočepy
ID
barrandov
Stavba
Cihlová
Stav objektu
Novostavba
Patro
2.
Vlastnictví
Osobní
Užitná plocha
50 m2
Plocha zahrady
29 m2
Třída energetické náročnosti
B - Velmi úsporná
Garáž
Sklep
Terasa
Výtah
Bezbarierový přístup

Kontaktovat makléře

Máte zájem o tento byt?

Tímto, v souladu s nařízením Evropského parlamentu a Rady (EU) 2016/679, v platném znění, prohlašuji, že mi je alespoň 16 let a uděluji tak svůj souhlas se zpracováním zadaných údajů (jméno, telefon, e-mail, ip adresa) společnosti B3 Technology, s.r.o., IČ: 07330600, se sídlem Novostavby 126/23, 435 11 Lom (správce dat), za účelem předání dotazu z tohoto formuláře Vámi vybranému inzerentovi a zpětného kontaktování mé osoby. Osobní údaje bude správce zpracovávat manuálně i automaticky přímo prostřednictvím svých zaměstnanců. Informace předané tímto formulářem budou uloženy v databázi správce maximálně po dobu 10 let. Odvolání souhlasu s uložením a zpracováním poskytnutých dat lze e-mailem na info@realitypro.eu. V případě podezření na neoprávněné použití Vámi poskytnutých údajů máte právo předat podnět k šetření Úřadu pro ochranu osobních údajů. Více informací
Chystáte se prodat nemovitost?
Pomůžeme Vám!

Inzerát si prohlédlo 4 lidí

Prodejce

Mgr. Ondřej Staněk

Mgr. Ondřej Staněk

Hlídací pes

Chcete dostávat emailem podobné nabídky prodeje bytů 2+kk v Praze 5?

Podobné nemovitosti