Prodej činžovního domu, Ústí nad Labem - Krásné Březno, Svádovská, 387 m2 (ID: 2681911)

Svádovská, Ústí nad Labem, Krásné Březno

6 700 000 Kč HYPOTÉKA od 29 945 Kč /za měsíc

(za nemovitost, včetně provize, právního servisu)

Prověřené firmy v Ústí nad Labem

Okna a dveře

Rekonstrukce

Zámečnické práce

Informace k nemovitosti

Prodej činžovního domu 387 m²

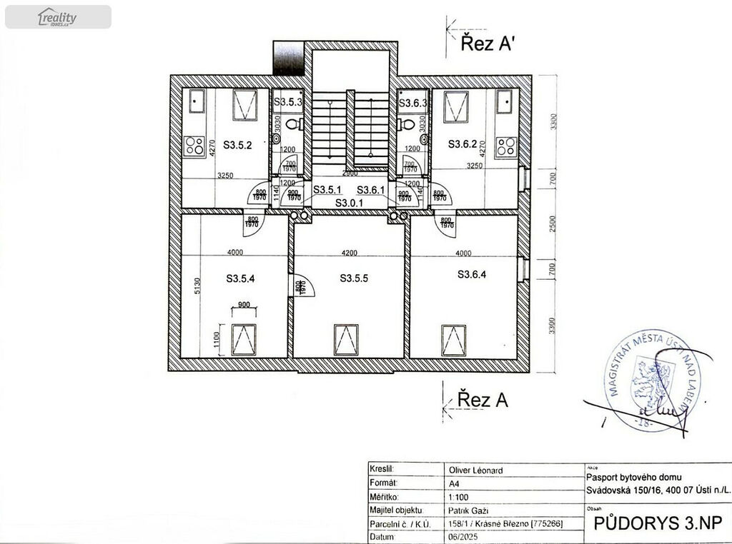
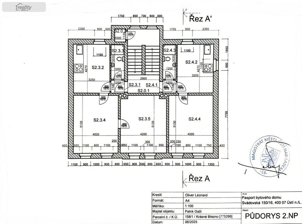
Nabízíme Vám bytový dům v Krásném Březně, ulice Svádovská. Nyní probíhá rekonstrukce, kde bude celkem 6 bytových jednotek.

Byt č. 1 - 41,13 m²
Byt č. 2 - 42,06 m²
Byt č. 3 - 60,55 m²
Byt č. 4 - 39,40 m²
Byt č. 5 - 60,55 m²
Byt č. 6 - 39,40 m²

Zatím je hotová nová střecha s krovy (krytina plech), stropy, podlahy, trámy, rozvod elektřiny, vody, nové okna. Součástí je pasport bytového domu.

Výměry: 1. PP- 45,21m², 1. NP -108,49 m², 2. NP - 118,13m², 3. NP - 115,19m²

Výhodou je vjezd do dvora a větší pozemek, který mohou poté nájemníci využívat.

Uvedená cena je za stav dokončení. V případě, že tomu tak nebude je majitel ochoten jednat.

Financování zařídíme.

Parametry nemovitosti

Cena
6 700 000 Kč Spočítat hypotéku
Poznámka k ceně
za nemovitost, včetně provize, právního servisu
Aktualizováno
26. 9. 2025
Adresa
Svádovská, Ústí nad Labem, Krásné Březno
ID
16
Stavba
Smíšená
Stav objektu
Před rekonstrukcí
Užitná plocha
387 m2
Třída energetické náročnosti
G - Mimořádně nehospodárná

Kontaktovat makléře

Realitní kancelář

Simona Červená

Smetanovo návrší 210/11, Dubí

Chystáte se prodat nemovitost?
Pomůžeme Vám!

Máte zájem o tuto nemovistost?

Tímto, v souladu s nařízením Evropského parlamentu a Rady (EU) 2016/679, v platném znění, prohlašuji, že mi je alespoň 16 let a uděluji tak svůj souhlas se zpracováním zadaných údajů (jméno, telefon, e-mail, ip adresa) společnosti B3 Technology, s.r.o., IČ: 07330600, se sídlem Novostavby 126/23, 435 11 Lom (správce dat), za účelem předání dotazu z tohoto formuláře Vámi vybranému inzerentovi a zpětného kontaktování mé osoby. Osobní údaje bude správce zpracovávat manuálně i automaticky přímo prostřednictvím svých zaměstnanců. Informace předané tímto formulářem budou uloženy v databázi správce maximálně po dobu 10 let. Odvolání souhlasu s uložením a zpracováním poskytnutých dat lze e-mailem na info@realitypro.eu. V případě podezření na neoprávněné použití Vámi poskytnutých údajů máte právo předat podnět k šetření Úřadu pro ochranu osobních údajů. Více informací
Chystáte se prodat nemovitost?
Pomůžeme Vám!

Inzerát si prohlédlo 2 lidí

Prodejce

Simona Červená

Simona Červená

Hlídací pes

Chcete dostávat emailem podobné nabídky prodeje činžovních domů v Ústí nad Labem?

Podobné nemovitosti