Pronájem obchodního prostoru, Praha - Nusle, Lomnického, 451 m2

Lomnického, Praha 4

5 250 € /za měsíc Získejte výhodnou HYPOTÉKU

(+ služby 176 076 Kč/měs. + DPH)

Prověřené firmy v Praze 4

Stěhovací služby

Výkup a prodej starého nábytku

Informace k nemovitosti

Neplatíte provizi!

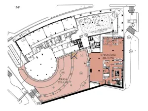
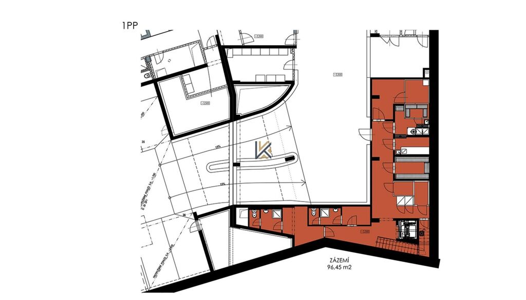
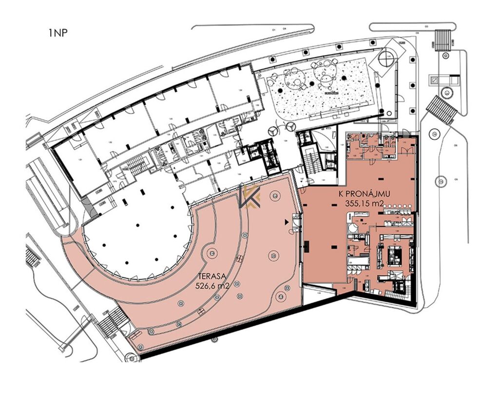
Nabízíme pronájem komerčního prostoru ve stavu shell and core o velikosti 451,6 m2, ve dvou patrech + 526,6 m2 terasy v budově Pankrác Prime, Lomnického 1742, Praha 4 . Prostor byl původně určen pro gastro. Má samostatný vstup z ulice, v přízemí open space pro restauraci a kuchyň a v mínus 1. patře zázemí pro zaměstnance. Předání ve stavu shell and core, viz. fotografie. Lze využít kontribuce nebo jiných pobídek od majitele na dokončení prostor.

Může být ale i jiný koncept jako např. fitness, zdravo provoz, showroom se sklady a kanceláří aj.

Pankrác Prime pro své nájemce nabízí cca 7 200 m2 moderních kancelářských prostor rozložených na sedmi patrech. Kanceláře splňují nejvyšší standardy s minimálním podílem na společných prostorách. Koncept budovy byl zcela podřízen budoucím požadavkům na maximální variabilitu prostor, díky čemuž nikterak neomezuje svého nájemce při volbě vnitřního uspořádání kanceláří. Unikátní administrativní projekt se nachází v etablované lokalitě Prahy 4. Budova je výborně dostupná veřejnou dopravou, v těsné blízkosti se nachází stanice metra Pražského povstání (linka C) ale také několik zastávek autobusů a tramvají. Budova je dobře dosažitelná i autem z pražské magistrály, která umožňuje snadný příjezd na dálnici D1 a dále pak skrz Jižní spojku na mezinárodní letiště v Ruzyni. Pošta, obchody a několik restaurací se nachází v docházkové vzdálenosti, stejně jako nákupní centrum Arkády Pankrác.

Zdarma pro Vás připravíme nabídku kanceláří a obchodních prostor z více jak 300 budov po celé Praze. Těšíme se na kontaktování.

Parametry nemovitosti

Cena
5 250 € /za měsíc
Poznámka k ceně
+ služby 176 076 Kč/měs. + DPH
Aktualizováno
4. 3. 2026
Adresa
Lomnického, Praha 4
ID
967622
Stavba
Smíšená
Stav objektu
Velmi dobrý
Patro
1. z 11
Typ objektu
Patrový
Užitná plocha
451 m2
Zastavěná plocha
2340 m2
Plocha nebytových prostor
451 m2
Třída energetické náročnosti
G - Mimořádně nehospodárná
Elektřina
230V

Kontaktovat makléře

Máte zájem o tuto nemovistost?

Tímto, v souladu s nařízením Evropského parlamentu a Rady (EU) 2016/679, v platném znění, prohlašuji, že mi je alespoň 16 let a uděluji tak svůj souhlas se zpracováním zadaných údajů (jméno, telefon, e-mail, ip adresa) společnosti B3 Technology, s.r.o., IČ: 07330600, se sídlem Novostavby 126/23, 435 11 Lom (správce dat), za účelem předání dotazu z tohoto formuláře Vámi vybranému inzerentovi a zpětného kontaktování mé osoby. Osobní údaje bude správce zpracovávat manuálně i automaticky přímo prostřednictvím svých zaměstnanců. Informace předané tímto formulářem budou uloženy v databázi správce maximálně po dobu 10 let. Odvolání souhlasu s uložením a zpracováním poskytnutých dat lze e-mailem na info@realitypro.eu. V případě podezření na neoprávněné použití Vámi poskytnutých údajů máte právo předat podnět k šetření Úřadu pro ochranu osobních údajů. Více informací
Chystáte se prodat nemovitost?
Pomůžeme Vám!

Inzerát si prohlédlo 10 lidí

Prodejce

Elizabeth Tien

Elizabeth Tien

Hlídací pes

Chcete dostávat emailem podobné nabídky pronájmu obchodních prostor v Praze 4?

Podobné nemovitosti