Pronájem rodinného domu, Mělník, Na Průhoně, 123 m2 (ID: 2680631)

Na Průhoně, Mělník

35 000 Kč /za měsíc Získejte výhodnou HYPOTÉKU

(bez poplatků, + provize RK, včetně právního servisu)

Prověřené firmy v Mělníku

Informace k domu

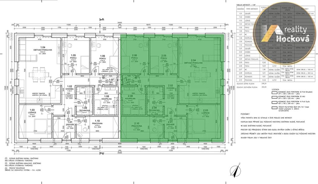
Nabízíme k pronájmu bytovou jednotku 5+kk (označenou jako pravá část č. 2) v moderním bungalovu o užitné ploše 123 m² s pozemkem 410 m².

Bydlení na kraji Mělníka, kde máte doslova vše na dosah – klid, přírodu i vybavenost města. Dům se nachází na výjimečném místě s nádhernými výhledy – ať už na vinice Lobkowicz, horu Říp, nebo město Mělník. Milovníci přírody ocení blízkost Kokořínska, kam se pohodlně dostanete na kole i pěšky.

Jedná se o dům pouze se dvěma bytovými jednotkami, který nabízí moderní, energeticky úsporné bydlení. Samozřejmostí je tepelné čerpadlo, podlahové topení i rekuperace, která zajišťuje čerstvý vzduch a příjemné prostředí v interiéru.

A to nejlepší? V roce 2025 zde v těsném sousedství vznikne nové obchodní centrum s hypermarketem Albert a McDonald’s. Díky tomu bude čerstvé pečivo, rychlá káva nebo praktické nákupy dostupné doslova pár kroků od domova – bez nutnosti dlouhého dojíždění. Vnímáme to jako výhodu, která ještě zvyšuje komfort každodenního života. Současně je možné dům i zahradu oddělit kvalitním oplocením a zajistit tak naprosté soukromí.

Na zahradě vás každý den přivítá dechberoucí výhled na okolní vinice, místo s jedinečnou atmosférou, kde se spojuje klid venkova s elegancí a historií kraje.

K jednotce náleží dvě parkovací stání přímo na pozemku a příprava pro nabíjení elektromobilu. Celý pozemek je oplocen, což zajišťuje bezpečí a soukromí.

Nájemné 35.000,-/měsíčně + služby, kauce 70.000,-, provize 35.000,-.

Volný od 1.12.2025.

Neváhejte a přijďte se přesvědčit na vlastní oči – tohle místo má duši.

Parametry domu

Cena
35 000 Kč /za měsíc
Poznámka k ceně
bez poplatků, + provize RK, včetně právního servisu
Aktualizováno
25. 9. 2025
Adresa
Na Průhoně, Mělník
ID
25031
Stavba
Cihlová
Stav objektu
Novostavba
Vybaveno
Ne
Druh objektu
Řadový
Užitná plocha
123 m2
Zastavěná plocha
150 m2
Podlahová plocha
390 m2
Plocha pozemku
410 m2
Plocha zahrady
260 m2
Třída energetické náročnosti
B - Velmi úsporná
Ukazatel energetické náročnosti
65 kWh/m2 za rok
Elektřina
230V
Odpad
ČOV pro celý objekt
Voda
Vodovod
Zdroj topení
Tepelné čerpadlo
Bezbarierový přístup
Parkování

Kontaktovat makléře

Máte zájem o tento dům?

Tímto, v souladu s nařízením Evropského parlamentu a Rady (EU) 2016/679, v platném znění, prohlašuji, že mi je alespoň 16 let a uděluji tak svůj souhlas se zpracováním zadaných údajů (jméno, telefon, e-mail, ip adresa) společnosti B3 Technology, s.r.o., IČ: 07330600, se sídlem Novostavby 126/23, 435 11 Lom (správce dat), za účelem předání dotazu z tohoto formuláře Vámi vybranému inzerentovi a zpětného kontaktování mé osoby. Osobní údaje bude správce zpracovávat manuálně i automaticky přímo prostřednictvím svých zaměstnanců. Informace předané tímto formulářem budou uloženy v databázi správce maximálně po dobu 10 let. Odvolání souhlasu s uložením a zpracováním poskytnutých dat lze e-mailem na info@realitypro.eu. V případě podezření na neoprávněné použití Vámi poskytnutých údajů máte právo předat podnět k šetření Úřadu pro ochranu osobních údajů. Více informací
Chystáte se prodat nemovitost?
Pomůžeme Vám!

Inzerát si prohlédlo 13 lidí

Prodejce

Kateřina Hocková

Kateřina Hocková

Hlídací pes

Chcete dostávat emailem podobné nabídky pronájmu rodinných domů v Mělníku?

Podobné nemovitosti