Prodej bytu 2+kk, Postupice, Blanická, 55 m2

Blanická, Postupice

4 194 470 Kč /za nemovitost HYPOTÉKA od 18 747 Kč /za měsíc
Prověřené firmy v Postupicích

Informace k bytu

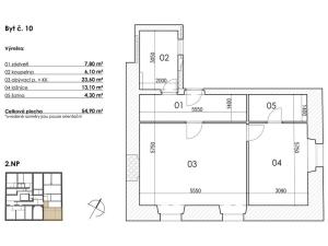
V unikátním rezidenčním projektu v Postupicích u Benešova nabízíme moderní byt 2+kk o velikosti 54,9 m² ve 2. nadzemním podlaží. Projekt spojuje kouzlo historie s nejvyšším standardem současného bydlení. Každý byt je pečlivě navržen tak, aby poskytoval maximální pohodlí, dostatek světla a funkční uspořádání pro moderní život. Vhodné pro rodiny, jednotlivce i investory.

✔ Parkovací stání a možnost garáží přímo v areálu
✔ Dětské hřiště v bezpečném vnitrobloku
✔ Klidná lokalita s rychlou dostupností do Benešova i Prahy
✔ Kompletní občanská vybavenost v docházkové vzdálenosti (škola, školka, obchody, restaurace)

Technické informace o stavbě:
Rekonstrukce probíhá s respektem k historické hodnotě objektu a zároveň s důrazem na moderní standardy:
Konstrukce: Smíšené a cihelné zdivo, zdi o tloušťce 300–1000 mm, založené na kamenných pasech.
Stropy: Dřevěné trámové, často zdvojené pro lepší akustiku a nosnost.
Příčky: Porobeton (Ytong KLASIK) pro výbornou tepelnou a zvukovou izolaci.
Vytápění: Teplovodní systém – podlahové topení. Vlastní elektrokotel 6 kW, umístěný v koupelně, chodbě nebo šatně.
Ohřev vody: Elektrické akumulační bojlery (100–120 l) v každé jednotce.
Společné prostory: Temperované elektrickými přímotopy na 15 °C.
Napojení na inženýrské sítě: Nové přípojky na veřejný vodovod a kanalizaci v ulici Průběžná, napojení na silnoproudou elektřinu (ČEZ).
Kanalizace dešťová: Řešena zasakováním a napojením na stávající systém.

Začněte novou kapitolu v unikátním prostředí historického domu s duší a pohodlím moderního domova. Kontaktujte nás pro více informací nebo sjednání prohlídky!

Parametry bytu

Cena
4 194 470 Kč /za nemovitost Spočítat hypotéku
Aktualizováno
23. 9. 2025
Adresa
Blanická, Postupice
ID
BJ10
Stavba
Cihlová
Stav objektu
Projekt
Patro
2. z 2
Vlastnictví
Osobní
Užitná plocha
55 m2
Podlahová plocha
55 m2
Plocha zahrady
30 m2
Třída energetické náročnosti
E - Nehospodárná
Elektřina
230V
Odpad
Veřejná kanalizace
Komunikace
Asfaltová
Doprava
Vlak, Silnice, MHD
Voda
Vodovod
Topné těleso
Radiátory
Zdroj topení
Elektrokotel
Garáž
Sklep
Parkování

Kontaktovat makléře

Máte zájem o tento byt?

Tímto, v souladu s nařízením Evropského parlamentu a Rady (EU) 2016/679, v platném znění, prohlašuji, že mi je alespoň 16 let a uděluji tak svůj souhlas se zpracováním zadaných údajů (jméno, telefon, e-mail, ip adresa) společnosti B3 Technology, s.r.o., IČ: 07330600, se sídlem Novostavby 126/23, 435 11 Lom (správce dat), za účelem předání dotazu z tohoto formuláře Vámi vybranému inzerentovi a zpětného kontaktování mé osoby. Osobní údaje bude správce zpracovávat manuálně i automaticky přímo prostřednictvím svých zaměstnanců. Informace předané tímto formulářem budou uloženy v databázi správce maximálně po dobu 10 let. Odvolání souhlasu s uložením a zpracováním poskytnutých dat lze e-mailem na info@realitypro.eu. V případě podezření na neoprávněné použití Vámi poskytnutých údajů máte právo předat podnět k šetření Úřadu pro ochranu osobních údajů. Více informací
Chystáte se prodat nemovitost?
Pomůžeme Vám!

Inzerát si prohlédlo 6 lidí

Prodejce

Martina Veselská

Martina Veselská

Hlídací pes

Chcete dostávat emailem podobné nabídky prodeje bytů 2+kk v Postupicích?

Podobné nemovitosti