Prodej bytu 4+kk, Praha - Chodov, Vejvanovského, 82 m2

Vejvanovského, Praha, Chodov

8 900 000 Kč /za nemovitost HYPOTÉKA od 39 778 Kč /za měsíc

(včetně provize)

Prověřené firmy v Praze 4

Stěhovací služby

Výkup a prodej starého nábytku

Informace k bytu

Prostorný byt 4+kk se zasklenou lodžií a dvěma sklepy v rezidenční části Prahy 4 – Chodova.

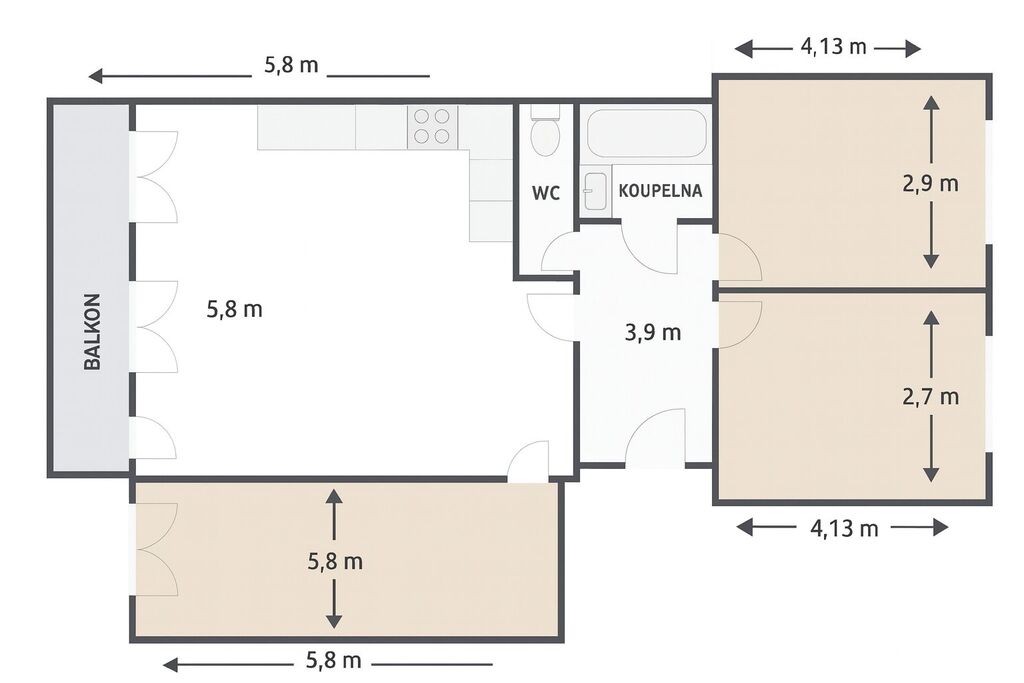
Světlý byt o dispozici 4+kk a podlahové ploše 81,6 m² se nachází ve 3. nadzemním podlaží komorního čtyřpodlažního domu v klidném rezidenčním prostředí Prahy 4 – Chodova. K bytu náleží zasklená lodžie o velikosti 5,65 m² a dvě sklepní kóje o celkové ploše 4,55 m². Byt se pyšní příjemnými výhledy do okolní zeleně.

Dispozice bytu nabízí obývací pokoj s kuchyní (28,22 m²), tři samostatné ložnice (12,71 m², 14,63 m² a 12,35 m²), předsíň (8,61 m²), koupelnu (3,52 m²), samostatnou toaletu (1,5 m²) a lodžii (5,65 m²).

Byt má zděné jádro a v roce 2009 byla provedena elektroinstalace. Dům je ve velmi dobrém technickém stavu, s energetickou náročností třídy C a nízkými provozními náklady.

Lokalita vyniká kompletní občanskou vybaveností v docházkové vzdálenosti – školy, školky, sportoviště, obchody i zdravotní služby. Jen pár minut chůze se nachází stanice metra C (Opatov, Háje) a autobusové zastávky. Díky snadnému napojení na dálnici D1 a Jižní spojku je zajištěna rychlá dostupnost centra města i ostatních částí Prahy.

Tato nemovitost představuje ideální volbu pro rodinu hledající pohodlné bydlení v klidném prostředí s výhledem do zeleně a výbornou infrastrukturou, stejně tak jako zajímavou investiční příležitost.

Podlahová plocha 81,6 m² + lodžie 5,65 m² + sklepní kóje 4,55 m²

Parametry bytu

Cena
8 900 000 Kč /za nemovitost Spočítat hypotéku
Poznámka k ceně
včetně provize
Aktualizováno
30. 9. 2025
Adresa
Vejvanovského, Praha, Chodov
ID
00855
Stavba
Panelová
Stav objektu
Velmi dobrý
Patro
4. z 5
Lokalita objektu
Klidná část obce
Vlastnictví
Osobní
Užitná plocha
82 m2
Třída energetické náročnosti
C - Úsporná
Ukazatel energetické náročnosti
113 kWh/m2 za rok
Elektřina
230V
Plyn
Plynovod
Odpad
Veřejná kanalizace
Topení
Ústřední dálkové
Komunikace
Asfaltová
Telekomunikace
Internet, Satelit, Kabelová televize
Doprava
MHD
Sklep
Lodžie
Výtah

Kontaktovat makléře

Máte zájem o tento byt?

Tímto, v souladu s nařízením Evropského parlamentu a Rady (EU) 2016/679, v platném znění, prohlašuji, že mi je alespoň 16 let a uděluji tak svůj souhlas se zpracováním zadaných údajů (jméno, telefon, e-mail, ip adresa) společnosti B3 Technology, s.r.o., IČ: 07330600, se sídlem Novostavby 126/23, 435 11 Lom (správce dat), za účelem předání dotazu z tohoto formuláře Vámi vybranému inzerentovi a zpětného kontaktování mé osoby. Osobní údaje bude správce zpracovávat manuálně i automaticky přímo prostřednictvím svých zaměstnanců. Informace předané tímto formulářem budou uloženy v databázi správce maximálně po dobu 10 let. Odvolání souhlasu s uložením a zpracováním poskytnutých dat lze e-mailem na info@realitypro.eu. V případě podezření na neoprávněné použití Vámi poskytnutých údajů máte právo předat podnět k šetření Úřadu pro ochranu osobních údajů. Více informací
Chystáte se prodat nemovitost?
Pomůžeme Vám!

Inzerát si prohlédlo 2 lidí

Prodejce

Petr Dvořák

Petr Dvořák

Hlídací pes

Chcete dostávat emailem podobné nabídky prodeje bytů 4+kk v Praze 4?

Podobné nemovitosti