Pronájem bytu 3+kk, Praha - Nové Město, Vodičkova, 125 m2

Vodičkova, Praha, Nové Město

48 000 Kč /za měsíc Získejte výhodnou HYPOTÉKU
Prověřené firmy v Praze 1

Stěhovací služby

Výkup a prodej starého nábytku

Informace k bytu

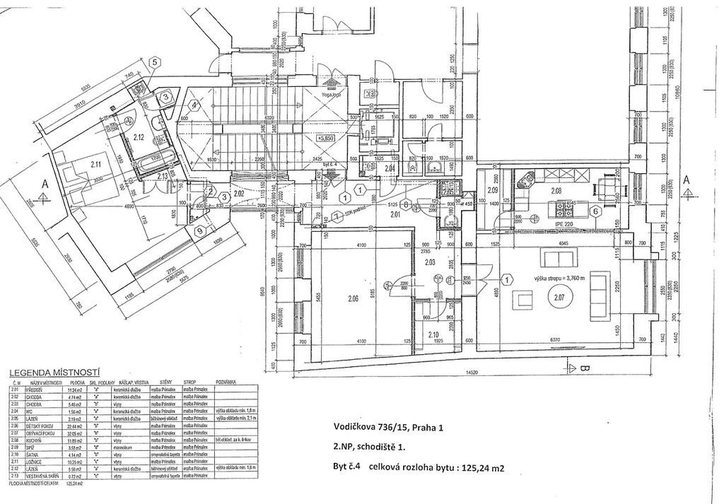
Nabízíme k pronájmu prostorný, luxusní byt 3+kk o výměře 125 m2, po kompletní rekonstrukci ve druhém nadzemním podlaží cihlového domu s výtahem ve Vodičkově ulici v Praze 1. Byt tvoří obývací pokoj s kuchyňským koutem, který má okno, dva neprůchozí pokoje, dvě koupelny z nichž jedna je s vanou, druhá se sprchovým koutem a samostatné WC s umyvadlem. Je zařízený novou kuchyňskou se spotřebiči – sklokeramická deska, elektrická trouba, lednice s mrazákem, pračka a šatní skříně v šatně. Velká špaletová okna z obývacího pokoje a kuchyně jsou orientovaná do Vodičkovy ulice, okna z obou pokojů jsou do klidného vnitrobloku. Na podlahách jsou v pokojích a v předsíni parkety, v koupelně a na WC je dlažba. Topení a ohřev vody je zajištěn vlastním plynovým kotlem. Výborná lokalita v centru Prahy, Václavské náměstí je cca 5 minut chůze od domu. Neplatíte provizi RK. Volný od 1.10. 2025.

Parametry bytu

Cena
48 000 Kč /za měsíc
Náklady na bydlení
služby 1600 Kč/měsíc/2 osoby, el. cca 1500 Kč/měsíc, plyn cca 3000 Kč/měsíc
Aktualizováno
23. 9. 2025
Adresa
Vodičkova, Praha, Nové Město
Stavba
Cihlová
Stav objektu
Velmi dobrý
Patro
1.
Vlastnictví
Osobní
Užitná plocha
125 m2

Kontaktovat makléře

Realitní kancelář

PROFI-TEN

Vodičkova 682/20, Praha

Chystáte se prodat nemovitost?
Pomůžeme Vám!

Máte zájem o tento byt?

Tímto, v souladu s nařízením Evropského parlamentu a Rady (EU) 2016/679, v platném znění, prohlašuji, že mi je alespoň 16 let a uděluji tak svůj souhlas se zpracováním zadaných údajů (jméno, telefon, e-mail, ip adresa) společnosti B3 Technology, s.r.o., IČ: 07330600, se sídlem Novostavby 126/23, 435 11 Lom (správce dat), za účelem předání dotazu z tohoto formuláře Vámi vybranému inzerentovi a zpětného kontaktování mé osoby. Osobní údaje bude správce zpracovávat manuálně i automaticky přímo prostřednictvím svých zaměstnanců. Informace předané tímto formulářem budou uloženy v databázi správce maximálně po dobu 10 let. Odvolání souhlasu s uložením a zpracováním poskytnutých dat lze e-mailem na info@realitypro.eu. V případě podezření na neoprávněné použití Vámi poskytnutých údajů máte právo předat podnět k šetření Úřadu pro ochranu osobních údajů. Více informací
Chystáte se prodat nemovitost?
Pomůžeme Vám!

Inzerát si prohlédlo 4 lidí

Prodejce

František Cakl

František Cakl

Hlídací pes

Chcete dostávat emailem podobné nabídky pronájmu bytů 3+kk v Praze 1?

Podobné nemovitosti