Pronájem bytu 1+kk, Praha - Vysočany, Pod Harfou, 48 m2 (ID: 2677436)

Pod Harfou, Praha, Vysočany

19 000 Kč /za měsíc Získejte výhodnou HYPOTÉKU
Prověřené firmy v Praze 9

Stěhovací služby

Výkup a prodej starého nábytku

Informace k bytu

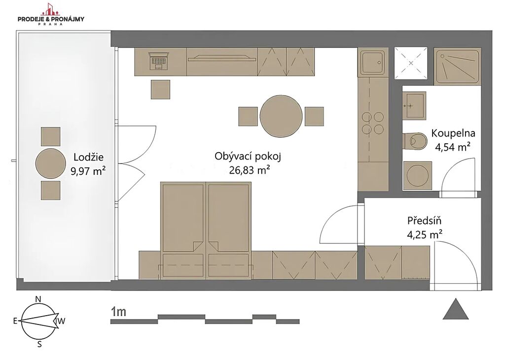
Nabízíme ke pronajmu prostorný a světlý byt 1+kk o ploše 38 m² s balkónem 10 m².

Byt se nachází v 3. patře umístěném v zánovním a moderním rezidenčním bytovém projektu Harfa Park.

Vybavení spotřebiči: el. sporák, el. trouba, indukční varní deska, kombinovaná chladnička, trouba, pračka, postel, zdravotní matrace, sedačka.

Orientace bytu na výhod zajistí dostatek světla po celý den.

Výše nákladu činí 5800 -Kč, elektřina se převádí na nájemníka.

Vedle domu je supermarket Albert několika restauraci, obchody, služby, Berber. V blízkosti je cyklostezka vedoucí a revitalizovaný přírodní park Rokytka. V 5 minutách je tramvajová zastávka Podkovářská v 10 minutách je Vlakové Nádraží Libeň, O2 Arena, OC Galerie Harfa, OC Fénix. 15 minut do stanic metra B Vysočanská, Palmovka, Českomoravská. 25 minut na tramvaji do centra do stanici Florenc

Parametry bytu

Cena
19 000 Kč /za měsíc
Náklady na bydlení
5800
Aktualizováno
22. 9. 2025
Adresa
Pod Harfou, Praha, Vysočany
Stavba
Cihlová
Stav objektu
Novostavba
Patro
3.
Vlastnictví
Družstevní
Užitná plocha
48 m2
Elektřina
230V
Odpad
Veřejná kanalizace
Komunikace
Asfaltová
Telekomunikace
Internet
Doprava
Dálnice, Silnice, MHD
Voda
Vodovod
Topné těleso
Radiátory
Zdroj topení
Ústřední dálkové
Zdroj teplé vody
Centrální dálkový ohřev
Balkon

Kontaktovat makléře

Máte zájem o tento byt?

Tímto, v souladu s nařízením Evropského parlamentu a Rady (EU) 2016/679, v platném znění, prohlašuji, že mi je alespoň 16 let a uděluji tak svůj souhlas se zpracováním zadaných údajů (jméno, telefon, e-mail, ip adresa) společnosti B3 Technology, s.r.o., IČ: 07330600, se sídlem Novostavby 126/23, 435 11 Lom (správce dat), za účelem předání dotazu z tohoto formuláře Vámi vybranému inzerentovi a zpětného kontaktování mé osoby. Osobní údaje bude správce zpracovávat manuálně i automaticky přímo prostřednictvím svých zaměstnanců. Informace předané tímto formulářem budou uloženy v databázi správce maximálně po dobu 10 let. Odvolání souhlasu s uložením a zpracováním poskytnutých dat lze e-mailem na info@realitypro.eu. V případě podezření na neoprávněné použití Vámi poskytnutých údajů máte právo předat podnět k šetření Úřadu pro ochranu osobních údajů. Více informací
Chystáte se prodat nemovitost?
Pomůžeme Vám!

Inzerát si prohlédlo 6 lidí

Prodejce

Nikita Ivanov

Nikita Ivanov

Hlídací pes

Chcete dostávat emailem podobné nabídky pronájmu bytů 1+kk v Praze 9?

Podobné nemovitosti