Prodej bytu 3+kk, Praha - Krč, Na strži, 67 m2

Na strži, Praha 4

10 200 000 Kč /za nemovitost HYPOTÉKA od 45 588 Kč /za měsíc

(při rychlém jednání možná dohoda.)

Prověřené firmy v Praze 4

Stěhovací služby

Výkup a prodej starého nábytku

Informace k bytu

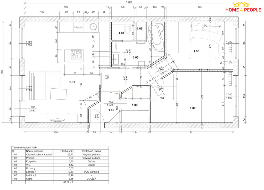
Nabízíme k prodeji velmi prakticky řešený a útulný byt o dispozici 3+kk a celkové ploše 67
m², který se nachází ve 2. nadzemním podlaží panelového domu v klidné části oblíbené čtvrti
Pankrác. Byt bude připraven k nastěhování v prosinci 2025.


Byt se nachází na jedinečném místě – přímo v dynamicky se rozvíjejícím centru Pankráce. V
bezprostřední blízkosti naleznete jazykovou školu se speciálními programy, Hobby centrum
Praha 4 s bohatou nabídkou aktivit pro děti i dospělé, obchodní centrum Arkády,
kancelářské komplexy a skvělou dopravní dostupnost.


Vybavení na fotografiích, s výjimkou postele v hlavní ložnici a jídelního stolu, je součástí kupní ceny. Zahrnuje i klimatizaci, která nasává čerstvý vzduch z lodžie, a malý bojler, díky
kterému budete mít teplou vodu i v případě plánovaných odstávek nebo havárie.


Dispozice bytu:
• Prostorná předsíň (7 m²) se vstupem do všech místností a samostatnou šatnou (3,2
m²) s podsvětlenou vestavěnou skříní a integrovaným botníkem.
• Dominantou bytu je obývací pokoj s kuchyňským koutem (25,7 m²), vybaveným
moderní kuchyňskou linkou s ostrůvkem, plynovou sklokeramickou deskou a všemi
základními spotřebiči. Z obývací části je vstup na prostorný zasklený balkon (7 m²).
Atmosféru dotváří luxusní podhledové LED osvětlení ideální pro večerní relax.
• Dvě ložnice (10,4 m² a 13,5 m²), obě orientované na západ do klidného vnitrobloku s
výhledem na beachvolejbalové hřiště. Jedna z ložnic je ideální jako dětský pokoj či
pracovna, druhá jako hlavní ložnice.
• Koupelna (5,3 m²) vybavená vanou, pračkou a kosmetickým stolem. Toaleta (1,4 m²)
je samostatná, přístupná přes koupelnu.
Další výhodou je komora/spíž (~1 m²) na chodbě přímo naproti bytu a společná kolárna s
uzamykatelnými stojany na kola či místem pro lyžařské vybavení.


Technické informace:
• Podlahy: plovoucí podlaha (obývací pokoj, kuchyň, předsíň, šatna, ložnice), vinyl
(dětský pokoj), dlažba (koupelna, WC).
• Okna: západní strana je vybavena dálkově ovládanými žaluziemi.


Lokalita a občanská vybavenost:
Byt se nachází ve výjimečně dobře dostupné lokalitě. Stanice metra C – Pankrác je vzdálena
pouhé 4 minuty chůze, autobusová zastávka je přímo před domem. V okolí je bohatá
nabídka obchodů, služeb i restaurací.

Tato nemovitost je skvělou volbou pro rodiny s dětmi, páry i investory, kteří hledají kvalitní bydlení
s výbornou dostupností do centra města.

Pro více informací či domluvení prohlídky mne neváhejte kontaktovat. Rád Vás provedu
osobně. Ev. číslo: 31921.

Parametry bytu

Cena
10 200 000 Kč /za nemovitost Spočítat hypotéku
Poznámka k ceně
při rychlém jednání možná dohoda.
Aktualizováno
16. 10. 2025
Adresa
Na strži, Praha 4
ID
31921
Stavba
Panelová
Stav objektu
Velmi dobrý
Patro
2. z 7
Vybaveno
Ano
Vlastnictví
Osobní
Užitná plocha
67 m2
Podlahová plocha
67 m2
Třída energetické náročnosti
C - Úsporná
Topení
Ústřední dálkové
Sklep
Lodžie

Kontaktovat makléře

Máte zájem o tento byt?

Tímto, v souladu s nařízením Evropského parlamentu a Rady (EU) 2016/679, v platném znění, prohlašuji, že mi je alespoň 16 let a uděluji tak svůj souhlas se zpracováním zadaných údajů (jméno, telefon, e-mail, ip adresa) společnosti B3 Technology, s.r.o., IČ: 07330600, se sídlem Novostavby 126/23, 435 11 Lom (správce dat), za účelem předání dotazu z tohoto formuláře Vámi vybranému inzerentovi a zpětného kontaktování mé osoby. Osobní údaje bude správce zpracovávat manuálně i automaticky přímo prostřednictvím svých zaměstnanců. Informace předané tímto formulářem budou uloženy v databázi správce maximálně po dobu 10 let. Odvolání souhlasu s uložením a zpracováním poskytnutých dat lze e-mailem na info@realitypro.eu. V případě podezření na neoprávněné použití Vámi poskytnutých údajů máte právo předat podnět k šetření Úřadu pro ochranu osobních údajů. Více informací
Chystáte se prodat nemovitost?
Pomůžeme Vám!

Inzerát si prohlédlo 17 lidí

Prodejce

Mgr. Daniel Martinů

Mgr. Daniel Martinů

Hlídací pes

Chcete dostávat emailem podobné nabídky prodeje bytů 3+kk v Praze 4?

Podobné nemovitosti