Prodej bytu 2+kk, Praha - Vysočany, Pod Harfou, 45 m2

Pod Harfou, Praha 9

7 890 000 Kč /za nemovitost HYPOTÉKA od 35 264 Kč /za měsíc
Prověřené firmy v Praze 9

Stěhovací služby

Výkup a prodej starého nábytku

Informace k bytu

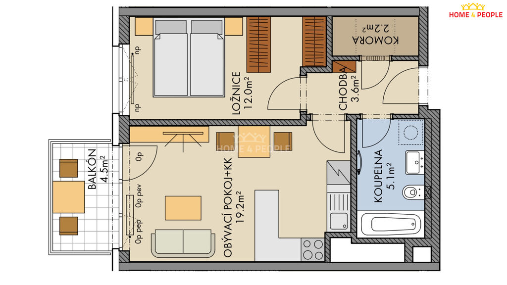
Nabízíme vám k prodeji nový družstevní byt 2+kk o velikosti 44,3 m² + balkon 4,5m² v developerském projektu Harfa Park od společnosti FINEP (kolaudace 11/2025). Lokalita: Praha 9 – Vysočany.

Byt tvoří obývací pokoj s kuchyňským koutem, ložnice, koupelna s toaletou, vstupní chodba, komora a balkon. Nachází se v 3. nadzemním podlaží novostavby s výtahem (celkem 10 NP). Díky severní orientaci se v létě nepřehřívá a okna nabízejí krásný výhled do zeleně.

V kupní ceně je zahrnuta kompletně vybavená koupelna a bílé interiérové dveře včetně obložek (Sapeli). Součástí je také dotace 500 Kč/m² na podlahové krytiny dle výběru nového majitele.

Nemovitost je prodávána prostřednictvím převodu Družstevního podílu:

Celková cena bytu je: 7.890.000,-kč.

Částka která se platí při převodu Družstevního podílu : 3.543.160,- Kč
 
Doplatek ve formě měsíčních splátek anuity družstvu je 4.346.840,-Kč

Anuitní splátky začínáte platit až po předání bytové jednotky.
Měsíční splátka anuity za byt je 23.495,-Kč.

Možnost přikoupení garážového stání za 600.000,-Kč, odstupné  je: 200.000,-Kč, anuita je 400.000,-Kč, měsíční splátka anuity 2.162,-Kč


Dopravní dostupnost je výborná: zastávka tramvaje je 3 minuty chůze od domu, stanice metra Vysočanská 10 minut chůze a vlakové nádraží Praha–Libeň jen 6 minut chůze.
Občanská vybavenost v okolí: supermarket Albert, kavárna, restaurace, vinotéka, kadeřnictví a řada dalších obchodů a služeb. V pěší vzdálenosti jsou obchodní centra Galerie Harfa a NC Fénix. Sportovní nadšence potěší oblíbená cyklostezka v sousedství rezidence a venkovní workoutové hřiště.

Družstevní anuitu splácíte bez nutnosti hypotečního úvěru (neprokazujete svou bonitu ani věk).
Měsíční splátka anuity 23.495,-Kč je kalkulována s úrovokou sazbou 5,77% (40 let). Developer s financující bankou nyní projednává aktualizaci úrokové sazby, očekává se cca 4,85%. Splácení anuity zahájíte po převzetí dokončeného bytu. Možnost vložení mimořádné splátky či doplacení celé anuity a následného převodu bytu do osobního vlastnictví. Ev. číslo: 31916.

Parametry bytu

Cena
7 890 000 Kč /za nemovitost Spočítat hypotéku
Aktualizováno
3. 10. 2025
Adresa
Pod Harfou, Praha 9
ID
31916
Stavba
Cihlová
Stav objektu
Novostavba
Patro
3. z 10
Vlastnictví
Družstevní
Užitná plocha
45 m2
Podlahová plocha
45 m2
Třída energetické náročnosti
B - Velmi úsporná
Topení
Ústřední dálkové
Balkon
Garáž

Kontaktovat makléře

Máte zájem o tento byt?

Tímto, v souladu s nařízením Evropského parlamentu a Rady (EU) 2016/679, v platném znění, prohlašuji, že mi je alespoň 16 let a uděluji tak svůj souhlas se zpracováním zadaných údajů (jméno, telefon, e-mail, ip adresa) společnosti B3 Technology, s.r.o., IČ: 07330600, se sídlem Novostavby 126/23, 435 11 Lom (správce dat), za účelem předání dotazu z tohoto formuláře Vámi vybranému inzerentovi a zpětného kontaktování mé osoby. Osobní údaje bude správce zpracovávat manuálně i automaticky přímo prostřednictvím svých zaměstnanců. Informace předané tímto formulářem budou uloženy v databázi správce maximálně po dobu 10 let. Odvolání souhlasu s uložením a zpracováním poskytnutých dat lze e-mailem na info@realitypro.eu. V případě podezření na neoprávněné použití Vámi poskytnutých údajů máte právo předat podnět k šetření Úřadu pro ochranu osobních údajů. Více informací
Chystáte se prodat nemovitost?
Pomůžeme Vám!

Inzerát si prohlédlo 1 lidí

Prodejce

František Zbahna

František Zbahna

Hlídací pes

Chcete dostávat emailem podobné nabídky prodeje bytů 2+kk v Praze 9?

Top nabídky

Podobné nemovitosti