Prodej bytu 3+kk, České Budějovice, Branišovská, 73 m2 (ID: 2648891)

Branišovská, České Budějovice 2

8 222 308 Kč /za nemovitost HYPOTÉKA od 36 749 Kč /za měsíc
Prověřené firmy v Českých Budějovicích

Informace k bytu

Vaše nové bydlení čeká – poslední volné byty v nabídce!

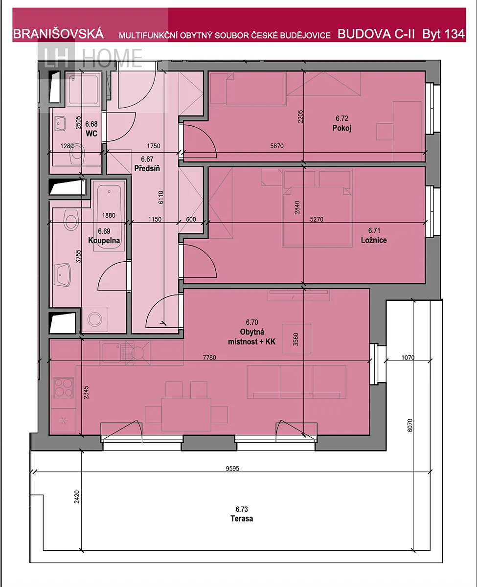
Moderní byt 3+kk (73,80 m²) s jihozápadní orientací, s terasou (27 m²) v unikátním projektu Nová čtvrť Branišovská.

Toužíte po domově, který kombinuje moderní design, skvělou lokalitu a kvalitní vybavení? Tady je příležitost, kterou nesmíte minout!

Tento komfortní byt v posledním. 6. patře novostavby bytového domu CII splňuje požadavky na praktické a promyšlené bydlení – ideální pro jednotlivce, páry i mladé rodiny. Moderní interiér zahrnuje kvalitní keramické dlažby, vinylové podlahy a elegantní interiérové dveře s obložkami. Každý detail byl navržen s maximální pečlivostí, aby vyhovoval nárokům na současný životní styl.

Proč právě Nová čtvrť Branišovská?

Jedinečná lokalita: Na dosah přírody i města – klidné bydlení v blízkosti zeleně s výbornou dostupností do centra Českých Budějovic.

Strategická poloha: Ideální pro studenty a zaměstnance Jihočeské univerzity, ale také pro investory hledající atraktivní příležitosti k pronájmu.

Kompletní občanská vybavenost: Školy, obchody, lékaři a další služby jsou na dosah ruky.

Aktivní životní styl: Perfektní místo pro milovníky procházek, cyklistiky a relaxace v přírodě.

Bytový dům C – více než jen bydlení:
Projekt zahrnuje 136 moderních bezbariérových bytů se zbývajícími dispozicemi 2+kk a 3+kk, každý s balkonem, lodžií nebo terasou. K dispozici je rovněž možnost zakoupení garážového stání a sklepní kóje.

K nastěhování léto 2025.

Nenechte si ujít tuto jedinečnou příležitost! Kontaktujte nás ještě dnes a zjistěte více o možnostech financování i dalších detailech.

Parametry bytu

Cena
8 222 308 Kč /za nemovitost Spočítat hypotéku
Aktualizováno
25. 8. 2025
Adresa
Branišovská, České Budějovice 2
ID
C2134
Stavba
Cihlová
Stav objektu
Novostavba
Patro
6. z 6
Vybaveno
Ne
Lokalita objektu
Klidná část obce
Vlastnictví
Osobní
Užitná plocha
73 m2
Zastavěná plocha
159 m2
Třída energetické náročnosti
A - Mimořádně úsporná
Plyn
Plynovod
Odpad
Veřejná kanalizace
Komunikace
Asfaltová
Voda
Vodovod
Topné těleso
Radiátory
Terasa
Výtah
Bezbarierový přístup

Kontaktovat makléře

Realitní kancelář

Luxury Home s.r.o.

Tepelská 137/3, Mariánské Lázně

Chystáte se prodat nemovitost?
Pomůžeme Vám!

Máte zájem o tento byt?

Tímto, v souladu s nařízením Evropského parlamentu a Rady (EU) 2016/679, v platném znění, prohlašuji, že mi je alespoň 16 let a uděluji tak svůj souhlas se zpracováním zadaných údajů (jméno, telefon, e-mail, ip adresa) společnosti B3 Technology, s.r.o., IČ: 07330600, se sídlem Novostavby 126/23, 435 11 Lom (správce dat), za účelem předání dotazu z tohoto formuláře Vámi vybranému inzerentovi a zpětného kontaktování mé osoby. Osobní údaje bude správce zpracovávat manuálně i automaticky přímo prostřednictvím svých zaměstnanců. Informace předané tímto formulářem budou uloženy v databázi správce maximálně po dobu 10 let. Odvolání souhlasu s uložením a zpracováním poskytnutých dat lze e-mailem na info@realitypro.eu. V případě podezření na neoprávněné použití Vámi poskytnutých údajů máte právo předat podnět k šetření Úřadu pro ochranu osobních údajů. Více informací
Chystáte se prodat nemovitost?
Pomůžeme Vám!

Inzerát si prohlédlo 18 lidí

Prodejce

Antonie Hadačová

Antonie Hadačová

Hlídací pes

Chcete dostávat emailem podobné nabídky prodeje bytů 3+kk v Českých Budějovicích?

Top nabídky

Podobné nemovitosti