Prodej chalupy, Bezděčí u Trnávky, 90 m2

Bezděčí u Trnávky

3 490 000 Kč /za nemovitost HYPOTÉKA od 15 598 Kč /za měsíc
Prověřené firmy v Bezděčí u Trnávky

Informace k domu

Skromná a přitom vyzývavá je tahle milá malá usedlost, kterou můžete hned začít užívat jako víkendovou, nebo celotýdenní chalupu. Voda teče, světlo svítí a kamna topí. Jakmile vstoupíte do průjezdu, zaujme vás malý dvorek, kde si ještě v pyžamu můžete vypít hrnek vaší ranní kávy. Možná si vás dřív přitáhne lavička v zahradě, do které se opírá slunce. Vystavíte mu tvář a zaposloucháte se do ptačích árií. A nadechnete se vůně růží. A je tu božský klid.

Chalupu původně postavenou ve stylu lidové architektury najdete v Bezděčí u Trnávky. Ves se 170 obyvateli se kdysi uvelebila na pomezí Boskovické brázdy a Zábřežské vrchoviny, lesy a louky jsou za humny.
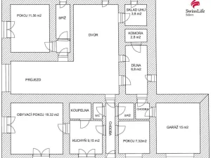
Osloví vás klidným místem, ve kterém se nachází. Nad obytnými a hospodářskými částmi situovanými do "U" je rozsáhlý půdní prostor. V přízemí jsou obytné čtyři menší útulné místnosti. Velký pokoj (18,5 m2) a kuchyň (9 m2) s novější koupelnou (3,4 m2) jsou orientované na jihozápad a západ; úzká síň a ložnice (7,3 m2) na jihozápad. Podlahy v kuchyni, chodbě a koupelně jsou pokryty dlažbou. V obýváku je původní prkenná podlaha, v ložnici betonová. Síň je obložená dřevem a propojuje zahradu s dvorkem.
Dvorek (24 m2) skýtá naprosté soukromí. Několika kroky jím přeběhnete do vejminku (11,5 m2), který je rovněž v původním stavu. Osloví vás pokoj s předsíní a komůrkou, ze které je dostupná i půda nad touto částí domu. Elektřina zde je, vodu a odpad sem můžete dobudovat a výměnek vyžívat pro ubytování hostů, nebo sem uklidit vnoučata.
Ze dvorku je přístupná i hospodářská část s bývalými chlévy, které jsou stavebně původní a vy si je proměníte podle svých představ. Současný majitel je využíval jako malou zámečnickou a truhlářskou dílnu a sklady. Do kamenné stodoly (15 m2) se dostanete i od obecní cesty a ze zahrady. Máte příležitost proměnit ji v letní zázemí, nebo v ní vybudovat další prostor pro bydlení. Plechová garáž stojí na pozemku vedle domu zcela samostatně.

Dva ze tří funkčních komínů jsou využívány pro lokální vytápění kamny na dřevo. Čtyři fotovoltaické panely na střeše zajišťují ohřev vody v elektrokotli o objemu 80 litrů a vytápí i elektrický radiátor v ložnici. Dům má připojení na internet.

Současní majitelé chalupu zachránili, když nad všemi objekty pořídili novou střechu a vyměnili okna a vstupní dveře. Stavební úpravy k zabránění vlhkosti započali otlukem některých zdí zevnitř, dále však nepokračovali. Dům se pravidelně vytápí a nyní je suchý.

Oplocená zahrada na jihozápad má 411 m2. Přes obecní travnatou cestičku a potok k domu patří 688 m2 trvalého travního porostu ve stráni (nyní pokryté náletovými křovinami a stromy). Svádí to vyšplhat se nahoru a rozhlédnout se po kraji. Je na co koukat.

Do Městečka Trnávky (5 km) nedohlédnete, do Jevíčka i Moravské Třebové dojedete autem za 16 minut, do Boskovic i Mohelnice za půl hodiny.
Nejlépe je však vyrazit na výšlap a na kolo. Trasy jsou hned za humny.

Těším se na váš zájem. Pomohu i s financováním.

.

Parametry domu

Cena
3 490 000 Kč /za nemovitost Spočítat hypotéku
Aktualizováno
15. 1. 2026
Adresa
Bezděčí u Trnávky
ID
24394
Stavba
Smíšená
Stav objektu
Dobrý
Vybaveno
Částečně
Typ objektu
Přízemní
Druh objektu
Samostatný
Lokalita objektu
Okraj obce
Užitná plocha
90 m2
Zastavěná plocha
320 m2
Podlahová plocha
128 m2
Plocha pozemku
1099 m2
Třída energetické náročnosti
G - Mimořádně nehospodárná
Elektřina
230V, 400V
Odpad
Septik
Topení
Lokální tuhá paliva, Lokální elektrické
Komunikace
Asfaltová
Telekomunikace
Internet
Doprava
Silnice
Voda
Vodovod
Garáž
Bezbarierový přístup
Parkování

Kontaktovat makléře

Máte zájem o tento dům?

Tímto, v souladu s nařízením Evropského parlamentu a Rady (EU) 2016/679, v platném znění, prohlašuji, že mi je alespoň 16 let a uděluji tak svůj souhlas se zpracováním zadaných údajů (jméno, telefon, e-mail, ip adresa) společnosti B3 Technology, s.r.o., IČ: 07330600, se sídlem Novostavby 126/23, 435 11 Lom (správce dat), za účelem předání dotazu z tohoto formuláře Vámi vybranému inzerentovi a zpětného kontaktování mé osoby. Osobní údaje bude správce zpracovávat manuálně i automaticky přímo prostřednictvím svých zaměstnanců. Informace předané tímto formulářem budou uloženy v databázi správce maximálně po dobu 10 let. Odvolání souhlasu s uložením a zpracováním poskytnutých dat lze e-mailem na info@realitypro.eu. V případě podezření na neoprávněné použití Vámi poskytnutých údajů máte právo předat podnět k šetření Úřadu pro ochranu osobních údajů. Více informací
Chystáte se prodat nemovitost?
Pomůžeme Vám!

Inzerát si prohlédlo 14 lidí

Prodejce

Mgr. Zdenka Hanyšová Celá

Mgr. Zdenka Hanyšová Celá

Hlídací pes

Chcete dostávat emailem podobné nabídky prodeje chalup v Bezděčí u Trnávky?

Podobné nemovitosti