Prodej výrobních prostor, Humpolec, Nádražní, 1924 m2

Nádražní, Humpolec

Cena na vyžádání /za nemovitost Získejte výhodnou HYPOTÉKU

(cena včetně provize RK)

Prověřené firmy v Humpolci

Informace k nemovitosti

Se souhlasem majitele a ve výhradním zastoupení vám nabízíme k prodeji třípodlažní komerční nemovitost v Humpolci na ulici Nádražní (EXIT 90 z dálnice D1) po
celkové rekonstrukci s nákladním výtahem (nosnost 750 kg) do všech podlaží o celkové užitné ploše 1924,2 m² a o celkové zastavěné výměře 1061 m² v průmyslové zóně v Humpolci (D1 EXIT 90).
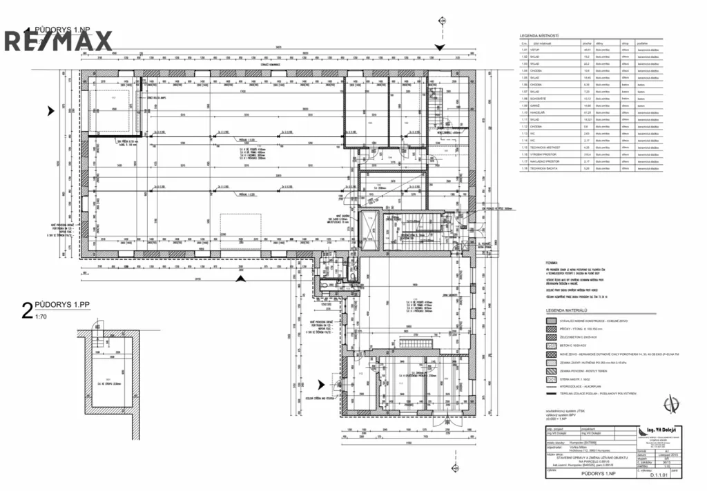
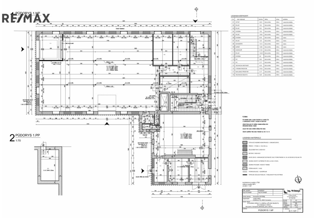
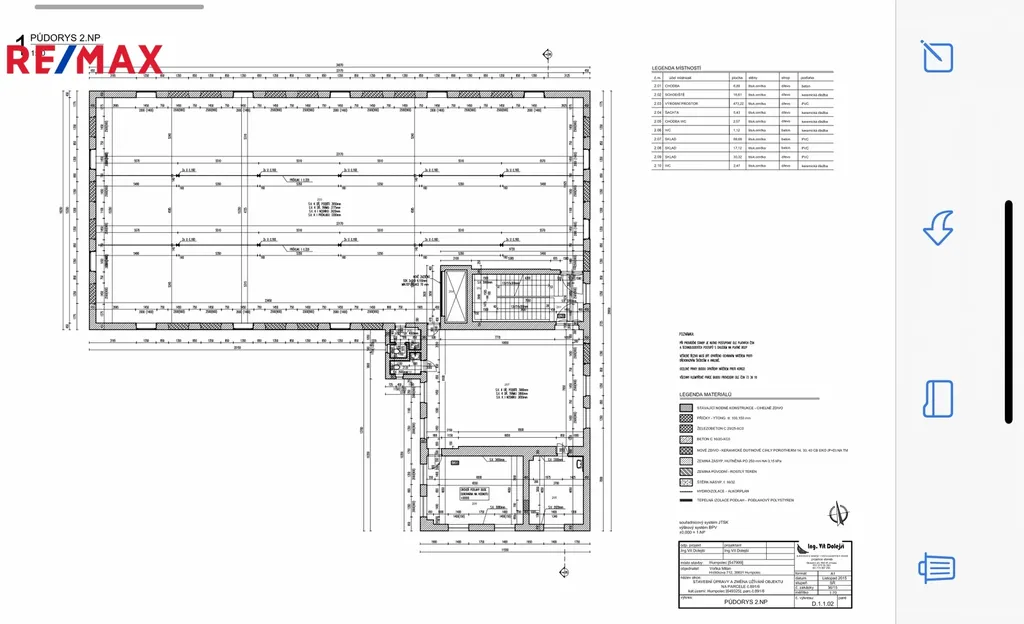
Komerční budova se skládá: Dispozice 1.NP (627,7 m2) – výrobní či skladový prostor
přístupný přes sekční vrata z parkoviště a se vstupem na zpevněný pozemek přes sekční vrata a
vstupní dveře o celkové výměře 418 m2, sociální zázemí pro výrobní prostor (WC, sprcha, šatna) o
výměře 11,1 m2, recepce + vstup z ulice Nádražní o výměře 45 m2, schodiště do 2.NP o výměře 22
m2, kancelář č. 1 o výměře 75 m2, kuchyňka o výměře 7,7 m2, WC o výměře 2,2 m2, zadní vstupní
chodba se vstupem přes dveře o výměře 12 m2, kancelář č. 2 o výměře 20 m2, zadní garáž přístupná
přes sekční vrata o výměře 14,7 m2.
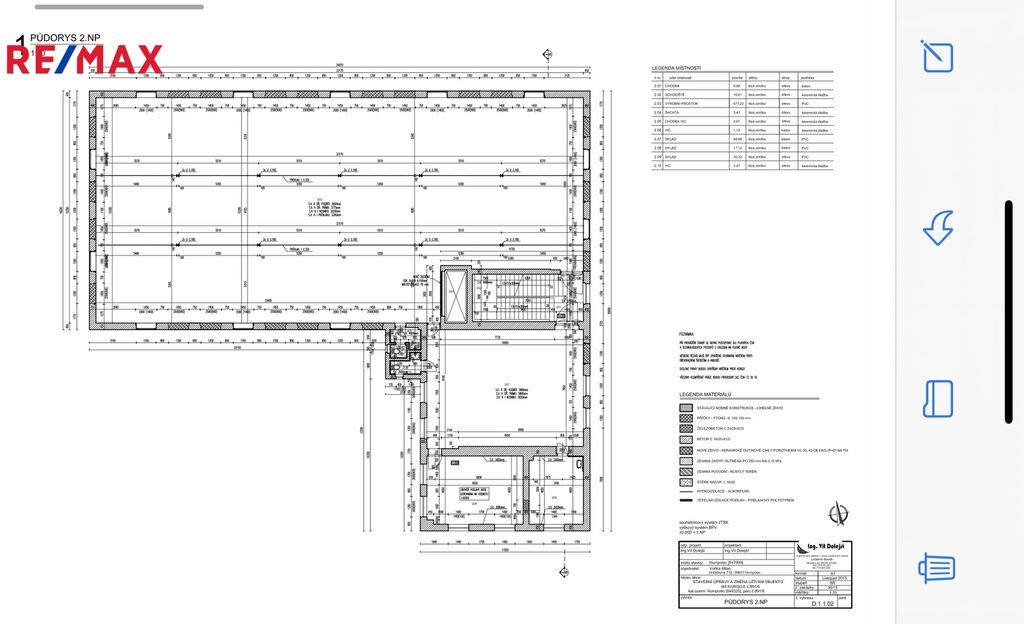
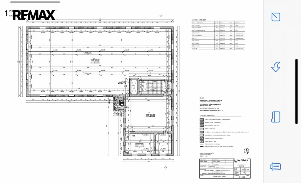
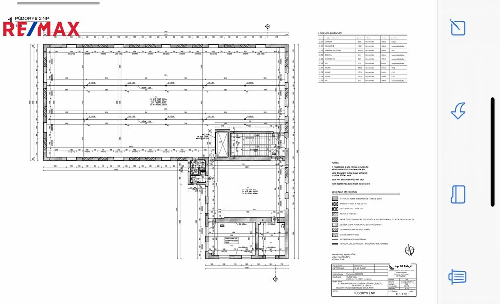
Dispozice 2.NP (635,8 m2) - výrobní či skladový prostor
se zatížením 500 kg/m2 o výměře 472 m2, schodiště o výměře 24 m2, kancelář č. 1 o výměře 58 m2,
koupelna + WC o výměře 6,3 m2, kancelář č. 2 o výměře 31 m2, kancelář č. 3 o výměře 17,5 m2.
Celková užitná plocha – 1924,2 m2
1.NP – 627,7 m2
2.NP – 635,8 m2
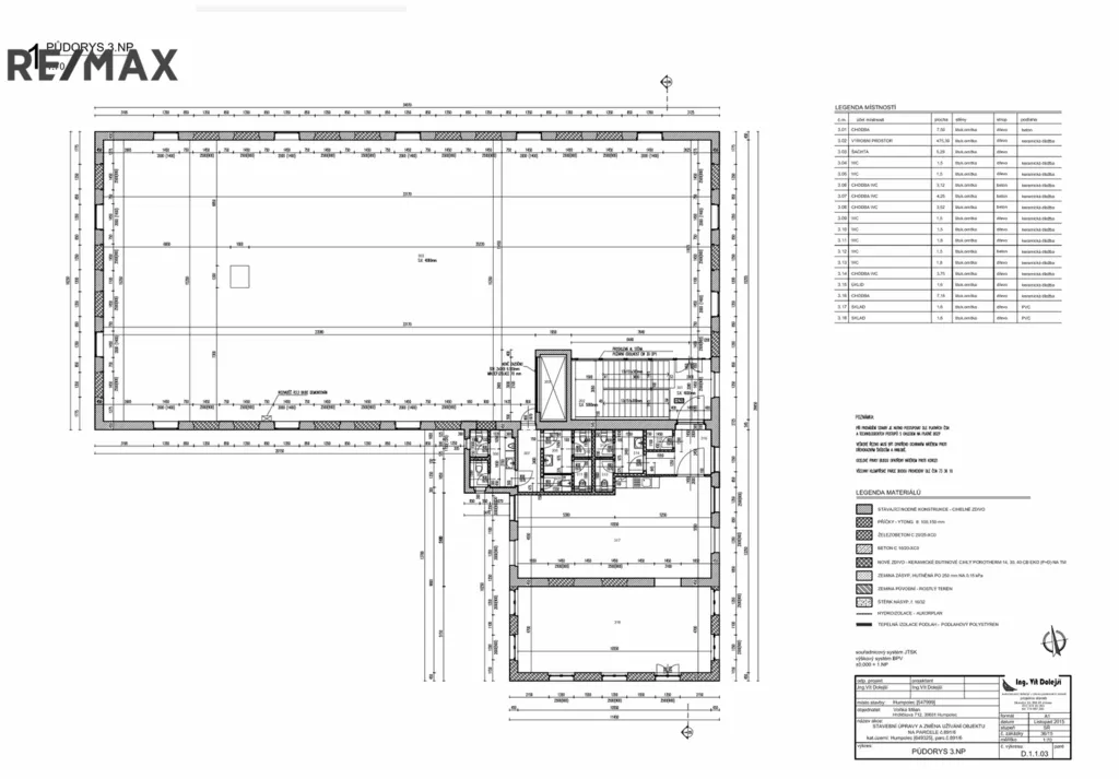
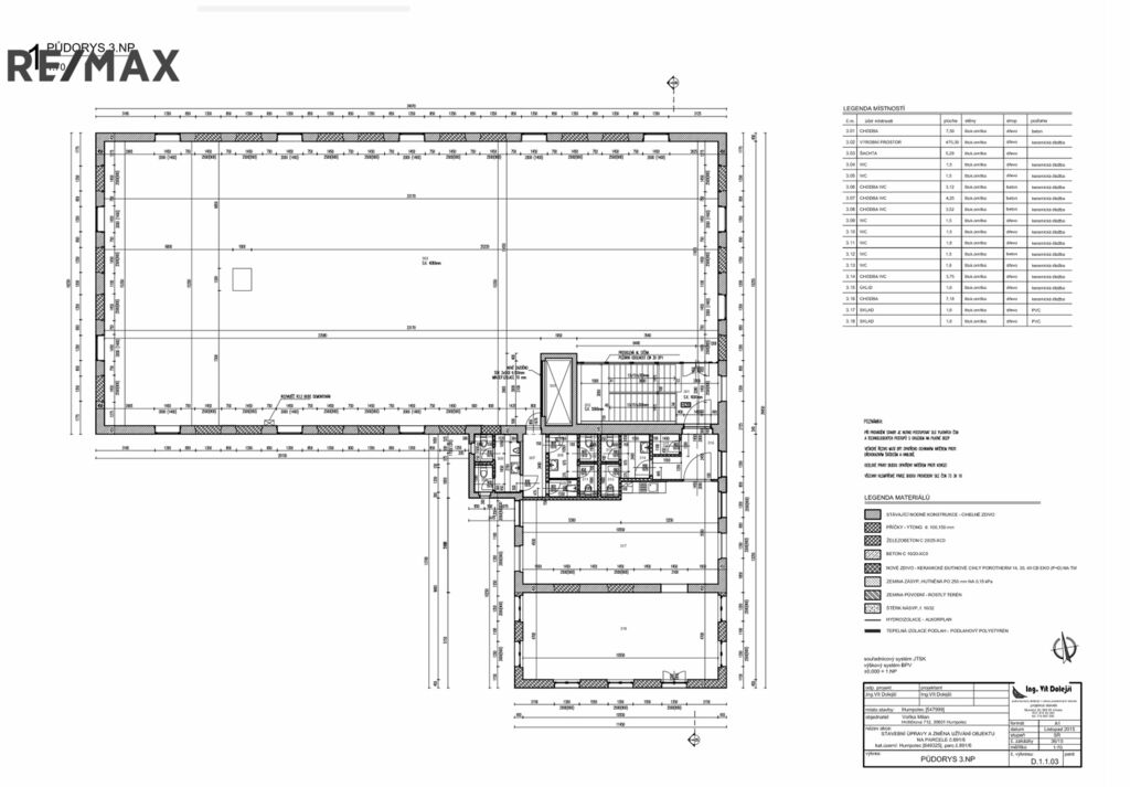
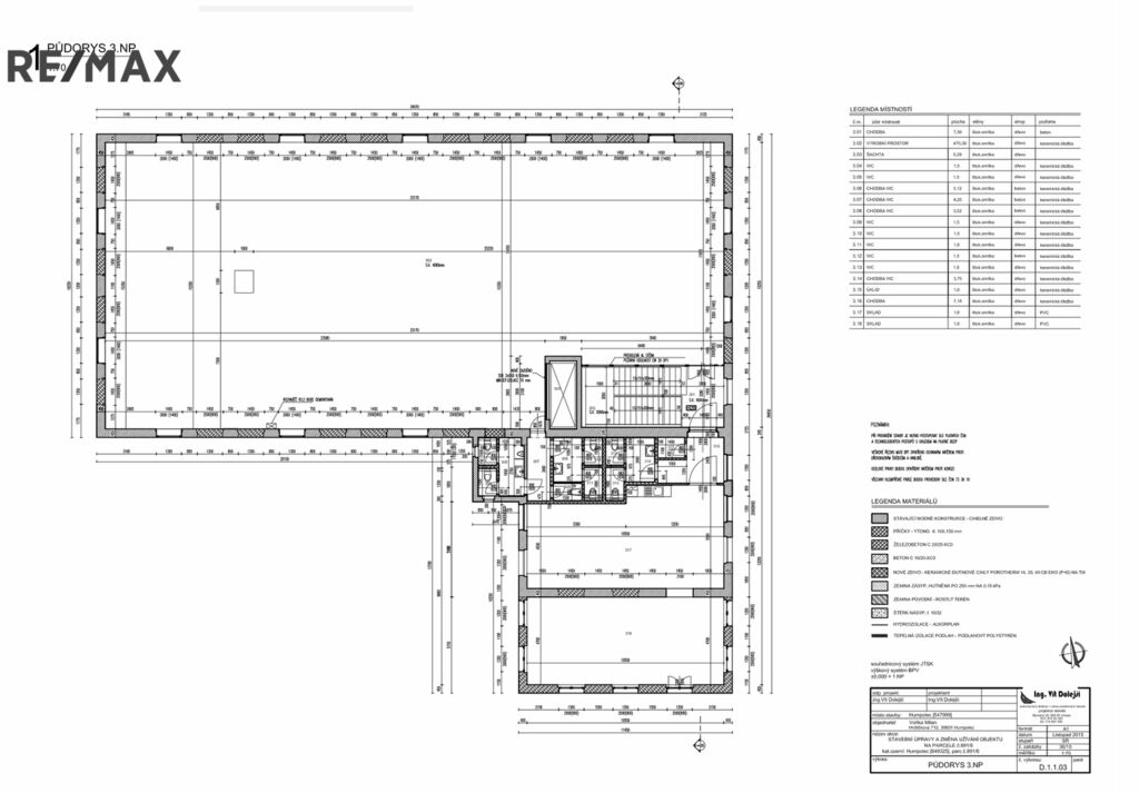
3.NP – 647,2 m2
1.PP – 13,5 m2
Zastavěná plocha 735 m2
Parkoviště o velikosti – 176 m2
Manipulační pozemek o velikosti – 150 m2.
1.NP
Výrobní prostor – 418 m2
Sociální zázemí výrobní prostor – 11,1 m2
Vstup + recepce – 45 m2
Schodiště – 22 m2
Kancelář č. 1 – 75 m2
Kuchyňka – 7,7 m2
WC – 2,2 m2
Zadní vstup – 12 m2
Kancelář č. 2 – 20 m2
Zadní garáž – 14,7 m2
Celkem užitná plocha 1.NP 627,7 m2.
2.NP
Výrobní prostor – 472 m2
Schodiště – 24 m2
Kancelář č. 1 – 85 m2
Koupelna + WC – 6,3 m2
Kancelář č. 2 – 31 m2
Kancelář č. 3 – 17,5 m2
Celkem užitná plocha 2.NP 635,8 m2.
3.NP
Výrobní prostor – 472 m2
Schodiště – 24 m2
Kancelář č. 1 – 7,2 m2
Terasa – 58 m2
Koupelna + WC – 7,2 m2
Strojovna výtahu – 8 m2
Celkem užitná plocha 3.NP 647,2 m2.
1.PP
sklep – 13,5 m2
Celkem užitná plocha 1.PP 13,5 m2.
Veškeré inženýrské sítě napojené.
V případě zájmu vám rádi pomůžeme s vyřízením financování této nemovitosti.
Kompletní projektová dokumentace bude k nahlédnutí při osobní prohlídce na nemovitosti.
Pro bližší informace mě neváhejte kontaktovat.
Prodávající si vyhrazuje právo vybrat kupujícího na základě jím zvolených kritérií.

Parametry nemovitosti

Cena
Cena na vyžádání Spočítat hypotéku
Poznámka k ceně
cena včetně provize RK
Aktualizováno
27. 4. 2026
Adresa
Nádražní, Humpolec
ID
143-NP07081
Stavba
Cihlová
Stav objektu
Dobrý
Typ objektu
Patrový
Užitná plocha
1924 m2
Zastavěná plocha
731 m2
Podlahová plocha
1061 m2
Převod do OV

Kontaktovat makléře

Realitní kancelář

Logo RE/MAX A-City

RE/MAX A-City

Březinova 4690/144, Jihlava

Chystáte se prodat nemovitost?
Pomůžeme Vám!

Máte zájem o tuto nemovistost?

Tímto, v souladu s nařízením Evropského parlamentu a Rady (EU) 2016/679, v platném znění, prohlašuji, že mi je alespoň 16 let a uděluji tak svůj souhlas se zpracováním zadaných údajů (jméno, telefon, e-mail, ip adresa) společnosti B3 Technology, s.r.o., IČ: 07330600, se sídlem Novostavby 126/23, 435 11 Lom (správce dat), za účelem předání dotazu z tohoto formuláře Vámi vybranému inzerentovi a zpětného kontaktování mé osoby. Osobní údaje bude správce zpracovávat manuálně i automaticky přímo prostřednictvím svých zaměstnanců. Informace předané tímto formulářem budou uloženy v databázi správce maximálně po dobu 10 let. Odvolání souhlasu s uložením a zpracováním poskytnutých dat lze e-mailem na info@realitypro.eu. V případě podezření na neoprávněné použití Vámi poskytnutých údajů máte právo předat podnět k šetření Úřadu pro ochranu osobních údajů. Více informací
Chystáte se prodat nemovitost?
Pomůžeme Vám!

Inzerát si prohlédlo 22 lidí

Prodejce

David Chaloupka

David Chaloupka

Hlídací pes

Chcete dostávat emailem podobné nabídky prodeje výrobních prostor v Humpolci?