Prodej chaty, Chvalkovice - Střeziměřice, 76 m2

Chvalkovice, Střeziměřice

4 990 000 Kč /za nemovitost HYPOTÉKA od 22 302 Kč /za měsíc
Prověřené firmy v Chvalkovicích

Informace k domu

Máte sen o místě, kde čas plyne pomaleji, příroda je na dosah a pohodlí domova zůstává? Právě takové místo pro vás máme. V klidné části obce Chvalkovice, konkrétně ve Střeziměřicích, nabízíme k prodeji útulnou dřevěnou chatu o dispozici 3+1 a užitné ploše 76,6 m², která stojí na vlastním, pečlivě udržovaném pozemku o výměře 717 m².
Chata je zateplená ze všech stran a díky plynovému kotli a klimatizaci s funkcí topení je plně připravená na celoroční užívání. Disponuje napojením na elektřinu, vodu z obecního vodovodu a odpad je řešen jímkou.
Dispozice a rekonstrukce:
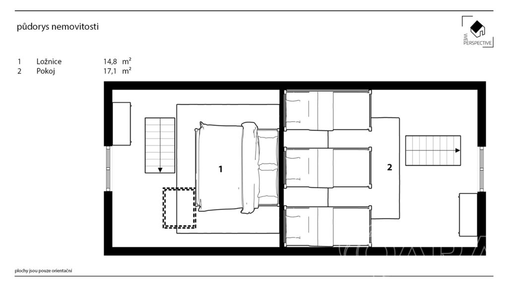
V přízemí najdete útulný obývací pokoj, kuchyni s jídelním koutem a koupelnu. V podkroví jsou dva další pokoje, které poskytují dostatek prostoru jak pro rodinu, tak pro hosty. V letech 2022–2023 prošla nemovitost zásadní modernizací – proběhlo kompletní zateplení, oprava střechy a oken, renovace koupelny, obývacího pokoje, podkroví i venkovní terasy.
Zahrada jako oáza:
Zahrada je naprostým skvostem – okrasná, pečlivě udržovaná a díky vzrostlému živému plotu poskytuje výborné soukromí. Na pozemku se nachází garáž (aktuálně využívaná jako technický sklad a dílna), zastřešená kuchyň s posezením, udírnou, grilem a venkovním krbem. A pro horké dny? Bazén o průměru 3 metry je ideální volba.
Dostupnost a lokalita:
Chata je snadno dostupná autem po celý rok, případně veřejnou dopravou do nedalekých Chvalkovic. Do Jaroměře je to pouhých 12 km. Celá oblast je obklopena přírodou a klidem – ideální pro víkendové úniky z města i pro ty, kdo hledají harmonické místo k trvalému bydlení.
Jestli hledáte místo, kde je radost trávit dny i roky, ozvěte se.
Ráda vám toto vyjímečné místo ukážu.

Parametry domu

Cena
4 990 000 Kč /za nemovitost Spočítat hypotéku
Aktualizováno
28. 10. 2025
Adresa
Chvalkovice, Střeziměřice
ID
16174
Stavba
Dřevěná
Stav objektu
Velmi dobrý
Vybaveno
Ano
Typ objektu
Patrový
Druh objektu
Samostatný
Lokalita objektu
Klidná část obce
Užitná plocha
76 m2
Plocha pozemku
717 m2
Třída energetické náročnosti
G - Mimořádně nehospodárná
Plyn
Plynovod
Odpad
Septik
Komunikace
Zpevněná
Telekomunikace
Internet
Doprava
Silnice
Voda
Vodovod
Převod do OV
Bazén

Kontaktovat makléře

Realitní kancelář

Logo QARA, s.r.o.

QARA, s.r.o.

Šafaříkova 201/17, Praha

Chystáte se prodat nemovitost?
Pomůžeme Vám!

Máte zájem o tento dům?

Tímto, v souladu s nařízením Evropského parlamentu a Rady (EU) 2016/679, v platném znění, prohlašuji, že mi je alespoň 16 let a uděluji tak svůj souhlas se zpracováním zadaných údajů (jméno, telefon, e-mail, ip adresa) společnosti B3 Technology, s.r.o., IČ: 07330600, se sídlem Novostavby 126/23, 435 11 Lom (správce dat), za účelem předání dotazu z tohoto formuláře Vámi vybranému inzerentovi a zpětného kontaktování mé osoby. Osobní údaje bude správce zpracovávat manuálně i automaticky přímo prostřednictvím svých zaměstnanců. Informace předané tímto formulářem budou uloženy v databázi správce maximálně po dobu 10 let. Odvolání souhlasu s uložením a zpracováním poskytnutých dat lze e-mailem na info@realitypro.eu. V případě podezření na neoprávněné použití Vámi poskytnutých údajů máte právo předat podnět k šetření Úřadu pro ochranu osobních údajů. Více informací
Chystáte se prodat nemovitost?
Pomůžeme Vám!

Inzerát si prohlédlo 11 lidí

Prodejce

Jana Štěpánová

Jana Štěpánová

Hlídací pes

Chcete dostávat emailem podobné nabídky prodeje chat v Chvalkovicích (okr. Náchod)?

Podobné nemovitosti