Prodej obchodního prostoru, Sušice, náměstí Svobody, 628 m2 (ID: 2526259)

náměstí Svobody, Sušice

Rezervováno
25 000 000 Kč /za nemovitost HYPOTÉKA od 111 735 Kč /za měsíc
Prověřené firmy v Sušici

Podlahy

Stěhovací služby

Informace k nemovitosti

Dům s příběhem. Stabilní výnos až 8,5% ročně podle využití. . Luxusní prostor k využití.
V samém srdci malebné Sušice, na jejím historickém náměstí, stojí budova, kterou místní dobře znají – dům Koruna. Nese v sobě odkaz doby, kdy byl obchod a bydlení úzce propojeno s centrem města. A dnes?
Koruna je výjimečný dům, který byl v minulosti kompletně zbourán a v roce 2003 znovu postaven jako moderní víceúčelový objekt s respektem k původnímu charakteru místa.
V roce 2014 byla dokončena i podkrovní bytová jednotka – luxusní byt 3+kk s galerií, který může sloužit k bydlení, podnikání, nebo krátkodobému ubytování na špičkové úrovni.

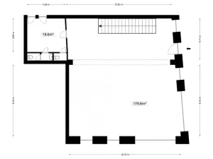
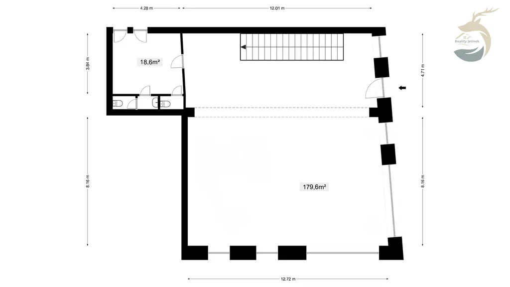
Celková výměra domu činí 628,52 m² rozdělených do tří plnohodnotných podlaží:

1. NP (202,10 m²) – 2. NP (190,40 m²) zavedený obchodní prostor, aktuálně dlouhodobě pronajatý silnému nájemci z oblasti maloobchodu


3. NP (236,02 m²) – luxusní byt 4+kk s velkorysým prostorem, galerií a výjimečnou atmosférou

K domu náleží 1/14 podílu na uzavřeném dvoře a parkovišti, které jsou v této lokalitě obrovskou výhodou.
Proč právě Sušice?
Sušice je žádaná lokalita po celý rok – brána Šumavy, oblíbený výchozí bod turistů, cyklistů, rodin i seniorů.
Historické centrum žije, lidé sem jezdí nejen na dovolenou, ale i za službami, gastro scénou a nákupy.
A právě dům Koruna je součástí tohoto živého organismu – přímo na náměstí, na místě s vysokou průchodností a viditelností. Pro investora, který umí spojit výnos s lokalitou, jde o mimořádnou příležitost.

Parametry nemovitosti

Stav
Rezervováno
Cena
25 000 000 Kč /za nemovitost Spočítat hypotéku
Aktualizováno
23. 9. 2025
Adresa
náměstí Svobody, Sušice
ID
0030
Stavba
Cihlová
Stav objektu
Velmi dobrý
Typ objektu
Přízemní
Užitná plocha
628 m2
Zastavěná plocha
233 m2
Podlahová plocha
628 m2
Třída energetické náročnosti
G - Mimořádně nehospodárná
Plyn
Plynovod
Komunikace
Asfaltová
Telekomunikace
Telefon, Internet
Převod do OV
Parkování

Kontaktovat makléře

Máte zájem o tuto nemovistost?

Tímto, v souladu s nařízením Evropského parlamentu a Rady (EU) 2016/679, v platném znění, prohlašuji, že mi je alespoň 16 let a uděluji tak svůj souhlas se zpracováním zadaných údajů (jméno, telefon, e-mail, ip adresa) společnosti B3 Technology, s.r.o., IČ: 07330600, se sídlem Novostavby 126/23, 435 11 Lom (správce dat), za účelem předání dotazu z tohoto formuláře Vámi vybranému inzerentovi a zpětného kontaktování mé osoby. Osobní údaje bude správce zpracovávat manuálně i automaticky přímo prostřednictvím svých zaměstnanců. Informace předané tímto formulářem budou uloženy v databázi správce maximálně po dobu 10 let. Odvolání souhlasu s uložením a zpracováním poskytnutých dat lze e-mailem na info@realitypro.eu. V případě podezření na neoprávněné použití Vámi poskytnutých údajů máte právo předat podnět k šetření Úřadu pro ochranu osobních údajů. Více informací
Chystáte se prodat nemovitost?
Pomůžeme Vám!

Inzerát si prohlédlo 24 lidí

Prodejce

Marcel Jelínek

Marcel Jelínek

Hlídací pes

Chcete dostávat emailem podobné nabídky prodeje obchodních prostor v Sušici (okr. Klatovy)?

Podobné nemovitosti