Pronájem obchodního prostoru, Vavřinec, 400 m2

Vavřinec, Veselice na Moravě

Cena na vyžádání /za metr čtvereční / rok Získejte výhodnou HYPOTÉKU

(cena u makléře)

Prověřené firmy v Vavřinci

Pojištění a finance

Informace k nemovitosti

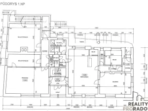
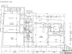
Nabízíme k pronájmu komerční budovu v obci Veselice na Moravě.
Tento objekt byl původně využíván jako prodejna smíšeného zboží společně s restaurací v přízemí objektu. Nabízí tedy kompletní zázemí pro tyto provozy, jako je zásobovací rampa, výtah do sklepa, skladovací prostory, sociální zařízení restaurace atd. Restaurace má rovněž malou předzahrádku. Jeden sklep slouží jako zázemí restaurace, ve druhém sklepě je technické zázemí s novým plynovým kotlem. Na pozemku za budovou lze parkovat. Většina budovy je osazena plastovými okny. Prostory je možno využít k podnikání (prodejna potravin, restaurace, skladování, drobná výroba). Objekt je připojen na elektřinu, vodu i plyn.

Nabídka přímo od majitele:
Karel Svoboda
STROJE SVOBODA s.r.o.
Svitavská 2397
678 01 Blansko
Mobile/Whatsapp: +420 608 860 497

Bez provize RK, při uzavírání nájemní smlouvy se hradí pouze kauce ve výši jednoho měsíčního nájmu.

Parametry nemovitosti

Cena
Cena na vyžádání
Poznámka k ceně
cena u makléře
Aktualizováno
15. 1. 2026
Adresa
Vavřinec, Veselice na Moravě
ID
7741
Stavba
Cihlová
Stav objektu
Velmi dobrý
Vybaveno
Ne
Typ objektu
Přízemní
Užitná plocha
400 m2
Zastavěná plocha
536 m2
Třída energetické náročnosti
G - Mimořádně nehospodárná
Převod do OV
Parkování

Kontaktovat makléře

Máte zájem o tuto nemovistost?

Tímto, v souladu s nařízením Evropského parlamentu a Rady (EU) 2016/679, v platném znění, prohlašuji, že mi je alespoň 16 let a uděluji tak svůj souhlas se zpracováním zadaných údajů (jméno, telefon, e-mail, ip adresa) společnosti B3 Technology, s.r.o., IČ: 07330600, se sídlem Novostavby 126/23, 435 11 Lom (správce dat), za účelem předání dotazu z tohoto formuláře Vámi vybranému inzerentovi a zpětného kontaktování mé osoby. Osobní údaje bude správce zpracovávat manuálně i automaticky přímo prostřednictvím svých zaměstnanců. Informace předané tímto formulářem budou uloženy v databázi správce maximálně po dobu 10 let. Odvolání souhlasu s uložením a zpracováním poskytnutých dat lze e-mailem na info@realitypro.eu. V případě podezření na neoprávněné použití Vámi poskytnutých údajů máte právo předat podnět k šetření Úřadu pro ochranu osobních údajů. Více informací
Chystáte se prodat nemovitost?
Pomůžeme Vám!
Theleadway banner

Inzerát si prohlédlo 16 lidí

Prodejce

Karel Svoboda

Karel Svoboda

Hlídací pes

Chcete dostávat emailem podobné nabídky pronájmu obchodních prostor v Vavřinci (okr. Blansko)?