Remax Monarcha

Pronájem bytu 4+kk, Olomouc - Hodolany, Mačákova, 118 m2

Mačákova, Olomouc, Hodolany

37 000 Kč /za měsíc Získejte výhodnou HYPOTÉKU

(vratná jistota , náklady na bydlení 5869-, poplatek za podnájem)

Prověřené firmy v Olomouci

Informace k bytu

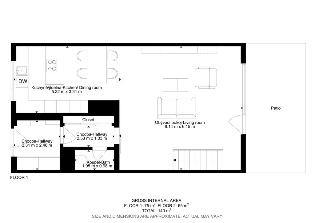
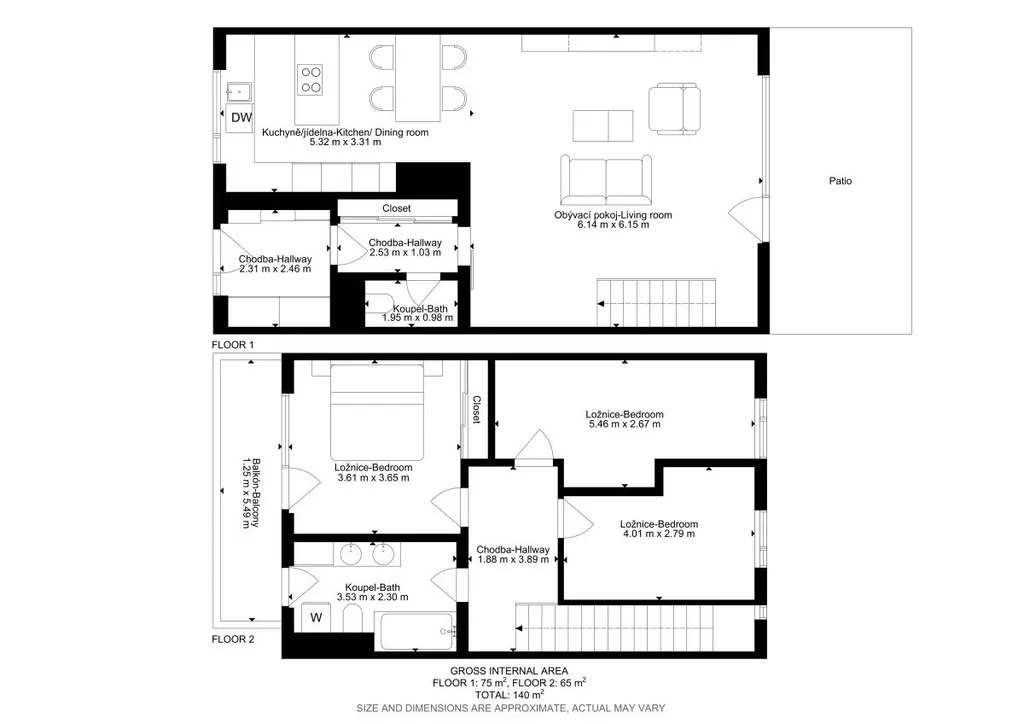
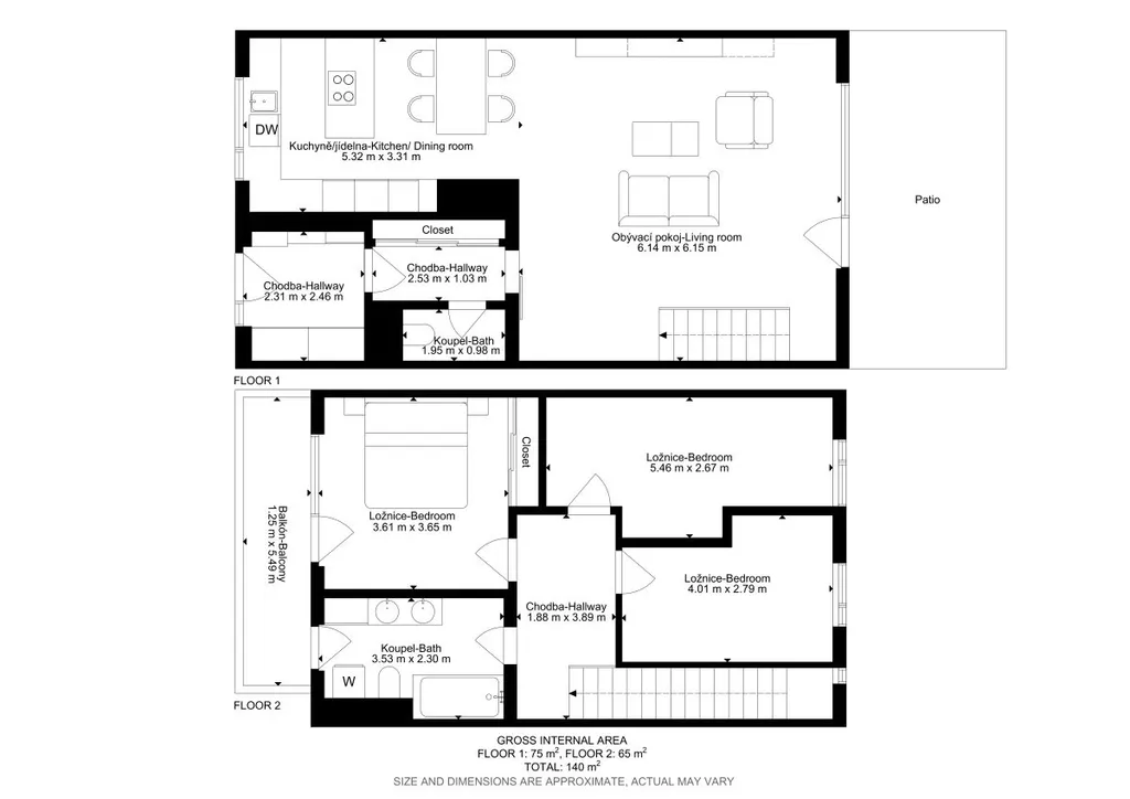
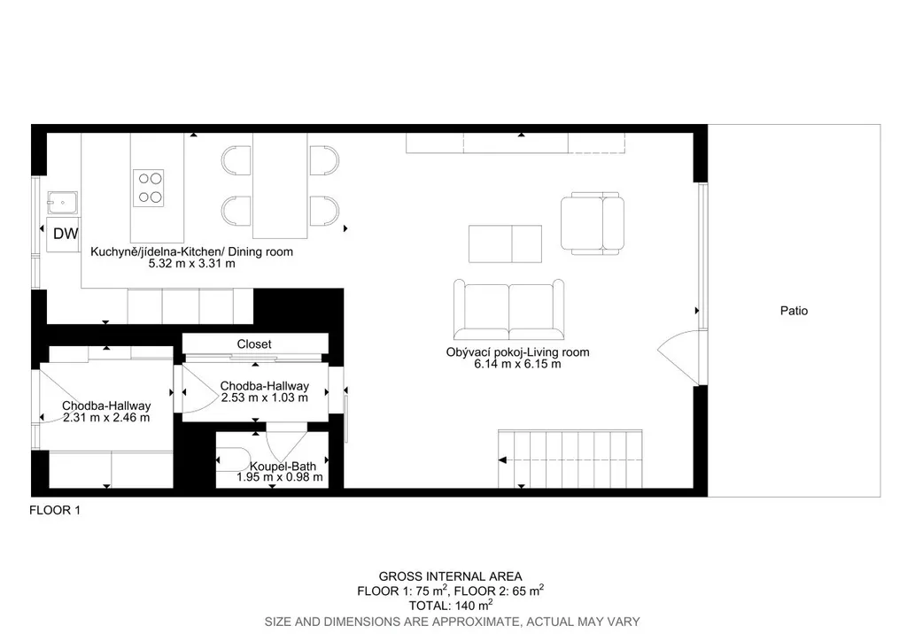
K dlouhodobému podnájmu nabízíme krásný a moderní dům o dispozici 4+kk v klidné lokalitě Olomouc-Hodolany. K domu o celkové výměře 118 m2 patří zahrada, balkon a dvě parkovací místa.

Dům se nabízí částečně vybavený. Kuchyně disponuje kuchyňskou linkou na míru s lednicí, myčkou, elektrickou troubou, varnou deskou, mikrovlnnou troubou, digestoří a jídelním stolem se židlemi. Obývací část je zařízena pohovkou, konferenčním stolem a křeslem. Součástí ložnice je postel a vestavěná skříň. Ostatní pokoje jsou nevybavené. V koupelně je vana, dvě umyvadla, pračka a toaleta.

V domě je optický internet, který je součástí záloh - Optika 300/300, Merit.

Dům je volný k nastěhování od 1.4.2026.

Uvedena energetická kategorie G, jelikož nemáme k dispozici PENB.

Byt pronajímá Ideální nájemce - služba, se kterou budete bydlet bezstarostně a za férových podmínek. Když se něco přihodí, k dispozici jsou správci, kteří s vámi vše vyřeší. Pomůžeme s veškerou administrativou, s nastavením plateb a zajistíme vám speciální pojištění. Pojďte bydlet s námi!

Parametry bytu

Cena
37 000 Kč /za měsíc
Poznámka k ceně
vratná jistota , náklady na bydlení 5869-, poplatek za podnájem
Aktualizováno
20. 2. 2026
Adresa
Mačákova, Olomouc, Hodolany
ID
N4093
Stavba
Cihlová
Stav objektu
Novostavba
Patro
1. z 2
Vybaveno
Částečně
Typ objektu
Patrový
Lokalita objektu
Klidná část obce
Vlastnictví
Osobní
Užitná plocha
118 m2
Podlahová plocha
118 m2
Elektřina
230V
Topení
Lokální elektrické
Balkon
Terasa
Výtah
Parkování

Kontaktovat makléře

Máte zájem o tento byt?

Tímto, v souladu s nařízením Evropského parlamentu a Rady (EU) 2016/679, v platném znění, prohlašuji, že mi je alespoň 16 let a uděluji tak svůj souhlas se zpracováním zadaných údajů (jméno, telefon, e-mail, ip adresa) společnosti B3 Technology, s.r.o., IČ: 07330600, se sídlem Novostavby 126/23, 435 11 Lom (správce dat), za účelem předání dotazu z tohoto formuláře Vámi vybranému inzerentovi a zpětného kontaktování mé osoby. Osobní údaje bude správce zpracovávat manuálně i automaticky přímo prostřednictvím svých zaměstnanců. Informace předané tímto formulářem budou uloženy v databázi správce maximálně po dobu 10 let. Odvolání souhlasu s uložením a zpracováním poskytnutých dat lze e-mailem na info@realitypro.eu. V případě podezření na neoprávněné použití Vámi poskytnutých údajů máte právo předat podnět k šetření Úřadu pro ochranu osobních údajů. Více informací
Chystáte se prodat nemovitost?
Pomůžeme Vám!

Inzerát si prohlédlo 361 lidí

Prodejce

Miloslava Kačerová

Miloslava Kačerová

Hlídací pes

Chcete dostávat emailem podobné nabídky pronájmu bytů 4+kk v Olomouci?

Podobné nemovitosti